13300
元/月
面议
一瓶2室2厅精装修企业推荐房源
-
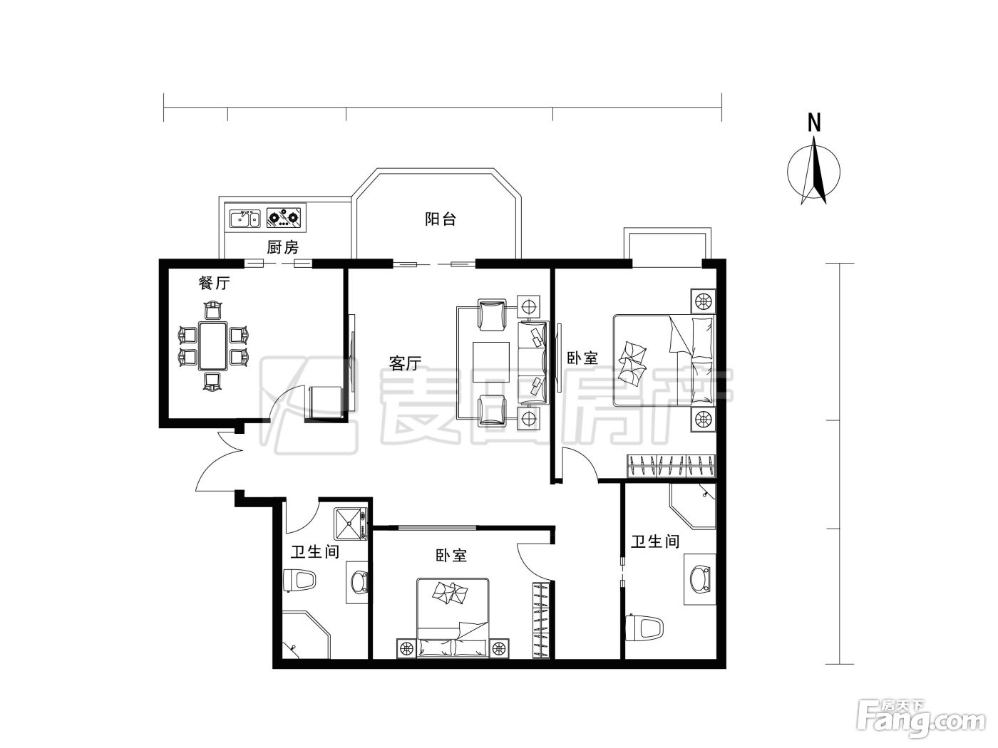
2室2厅2卫
整租
-
115.79㎡
面积
-
低层/13层
楼层
-
北
朝向
2026-01-24更新
租房不踩坑
3000+人正在热聊
加入群聊
-
看房
暂无
-
装修
精装修
-
入住
2026-01-13 00:00:00
-
咨询经纪人,了解更多房源信息
问一问
郑重提示:请您在签订合同之前,切勿支付任何形式的费用,以免上当受骗。
费用明细
-
面议
付款方式
-
13300
租金(元/月)
-
***
押金
-
***
服务费
- 房租含取暖费吗?
- 房租含物业费吗?
房源描述
-
房源亮点问经纪人
相信为您推荐的这套房子您一定会满意,赶快行动吧,先到先得! 房屋年代∶2004,面积∶115.79平方米,朝向∶北 1. 小区配备高端物业管理,让你享受宾至如归的服务; 2. 小区人文素质高,是您的居家的绝佳选择; 3. 小区居住安静舒适,让您拥有高品质的生活环境; 4. 小区绿化率高,绿树成荫鸟语花香让您随时呼吸到新鲜空气。
-
小区配套问经纪人
一瓶是由“北京壹瓶房地产开发有限公司”开发的大型高档住宅项目,位于北京市宣武区陶然亭公园北侧,是总面积逾50万平米的板式建筑集群。小区位于二环内,具有中国四大名亭美誉之一的陶然亭公园里,蕴含皇城600年的文化历史,出门1公交车,驾车2上二环,10到金融街,身处公园里,对于散步,锻炼,娱乐都很方便。小区置身公园内,有59公顷绿化和17公顷大水系的包围,使得本楼盘的空气净化清新、空气水分子充足,让人犹如身处大自然有利于身心舒畅和拥有健康的身体。
周边配套
地址:陶然亭路2号
- 免费咨询
- 专业服务
- 区域解读
- 户型分析
免责声明:房源信息由网站用户提供,其真实性、合法性由信息提供者负责,最终以政府部门登记备案为准。本网站内容凡涉及面积单位均为建筑面积,本网站不声明或保证内容之正确性和可靠性,租赁该房屋时,请谨慎核查。

