13000
元/月
押一付二
2室2厅新世界太华公寓
-
2室2厅2卫
整租
-
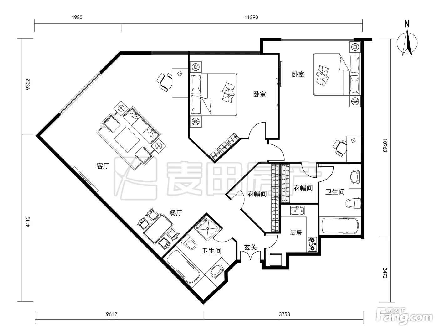
153.41㎡
面积
-
中层/19层
楼层
-
西北
朝向
2026-01-01更新
租房不踩坑
3000+人正在热聊
加入群聊
-
看房
暂无
-
装修
简装修
-
入住
2025-10-06 00:00:00
-
咨询经纪人,了解更多房源信息
问一问
郑重提示:请您在签订合同之前,切勿支付任何形式的费用,以免上当受骗。
费用明细
-
押一付二
付款方式
-
13000
租金(元/月)
-
***
押金
-
***
服务费
- 房租含取暖费吗?
- 房租含物业费吗?
房源描述
-
房源亮点问经纪人
相信为您推荐的这套房子您一定会满意,赶快行动吧,先到先得! 房屋年代∶1999,面积∶153.41平方米,朝向∶西北 1. 小区配备高端物业管理,让你享受宾至如归的服务; 2. 小区人文素质高,是您的居家的绝佳选择; 3. 小区居住安静舒适,让您拥有高品质的生活环境; 4. 小区绿化率高,绿树成荫鸟语花香让您随时呼吸到新鲜空气。
-
小区配套问经纪人
小区占地逾15,000平方米,裙楼为44000平方米的北京新世界商场二期,裙楼上盖三幢现代化豪华住宅及逾4500平方米之大型园林景致,为住户提供既方便且优雅高尚的居住环境,承纳精英一族的旷达人生,是身份的象征,是气度的显现。公寓周边怀抱天安门、故宫、天坛等最富古都风貌的人文景观,令您享受至美佳境、坐拥超市、美食广场的新世界百货和汉唐风情的旅游购物商场,世界名品和日常所需应有尽有,前卫时尚与古色古香相得益彰,使您生活不假外求。
周边配套
地址:崇文门外大街5号(地铁崇文门站南,崇文门外大街西侧)
- 免费咨询
- 专业服务
- 区域解读
- 户型分析
免责声明:房源信息由网站用户提供,其真实性、合法性由信息提供者负责,最终以政府部门登记备案为准。本网站内容凡涉及面积单位均为建筑面积,本网站不声明或保证内容之正确性和可靠性,租赁该房屋时,请谨慎核查。

