26000
元/月
押一付三
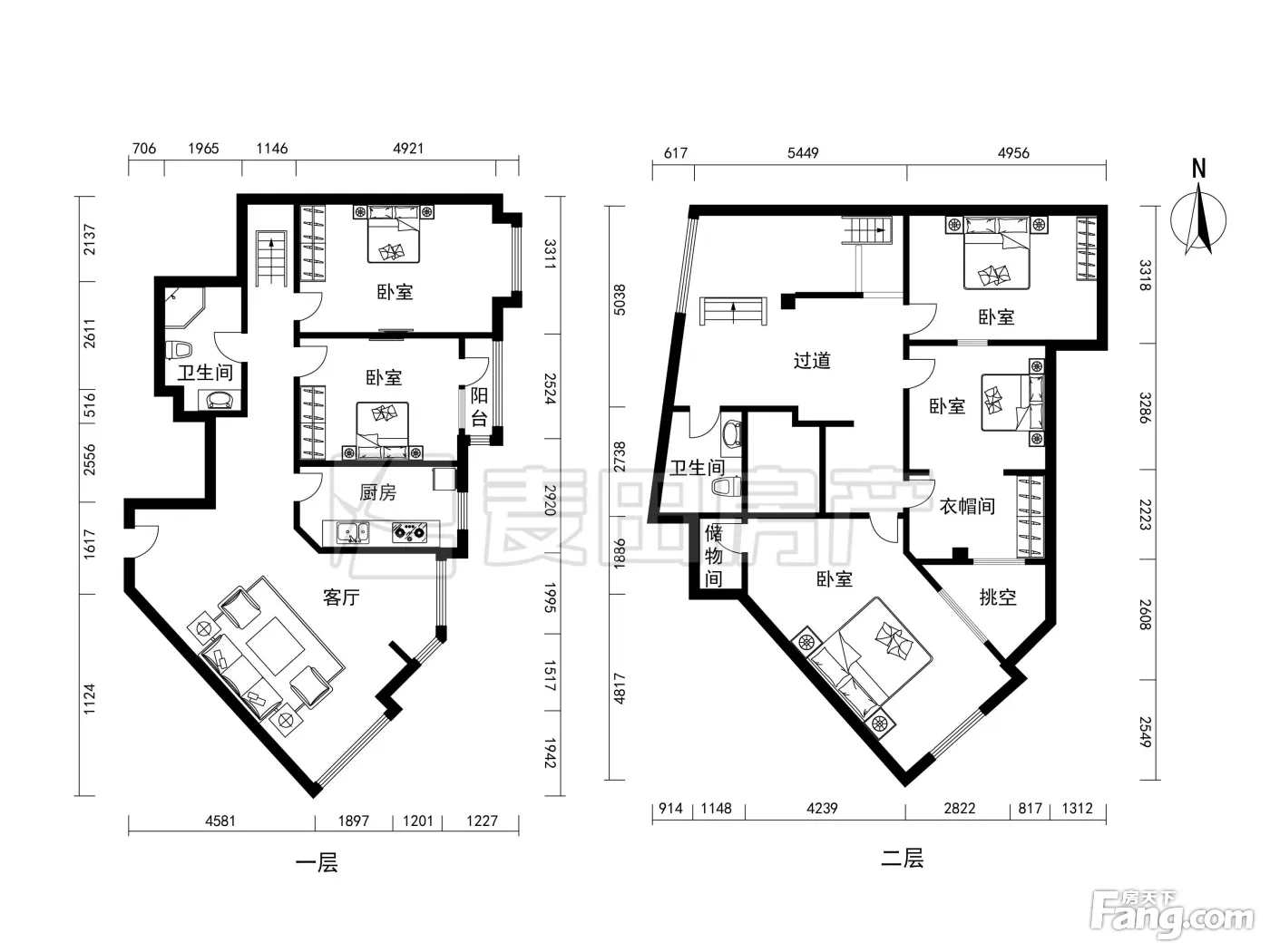
四合上院5室2厅精装修
-
5室2厅2卫
整租
-
115.17㎡
面积
-
顶层/14层
楼层
-
东南
朝向
2025-11-26更新
租房不踩坑
3000+人正在热聊
加入群聊
-
看房
暂无
-
装修
精装修
-
入住
2025-11-25 08:00:00
-
咨询经纪人,了解更多房源信息
问一问
郑重提示:请您在签订合同之前,切勿支付任何形式的费用,以免上当受骗。
费用明细
-
押一付三
付款方式
-
26000
租金(元/月)
-
***
押金
-
***
服务费
- 房租含取暖费吗?
- 房租含物业费吗?
房源描述
-
房源亮点问经纪人
相信为您推荐的这套房子您一定会满意,赶快行动吧,先到先得! 房屋年代∶2013,面积∶115.17平方米,朝向∶东南 1. 小区配备高端物业管理,让你享受宾至如归的服务; 2. 小区人文素质高,是您的居家的绝佳选择; 3. 小区居住安静舒适,让您拥有高品质的生活环境; 4. 小区绿化率高,绿树成荫鸟语花香让您随时呼吸到新鲜空气。
-
小区配套问经纪人
四合上院位于宣武门SOGO南侧,东临琉璃厂文化区,西侧和南侧分别靠近国家新闻出版总署和中国联通。社区总占地3.89万平米,总建筑规模近20万平米。项目建筑设计为区域内少有的板式住宅,采用了合围板式小高层的建筑布局,居住的舒适性很高。
周边配套
地址:山西街6号院
- 免费咨询
- 专业服务
- 区域解读
- 户型分析
免责声明:房源信息由网站用户提供,其真实性、合法性由信息提供者负责,最终以政府部门登记备案为准。本网站内容凡涉及面积单位均为建筑面积,本网站不声明或保证内容之正确性和可靠性,租赁该房屋时,请谨慎核查。


