东城区 新闻大厦 精装修 工美大厦 东单 APM写字楼
-
4元/平米·天
租金
-
精装修
装修
-
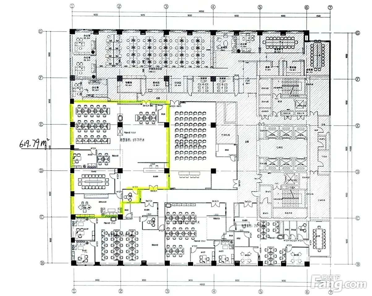
619.79㎡
建筑面积
租房不踩坑
3000+人正在热聊
加入群聊
-
楼盘名称
新闻大厦
-
区域
东城
-
物业费
暂无
-
类型
纯写字楼
-
等级
暂无
-
挂牌时间
2026-02-08
-
支付方式
押三付三
-
入驻时间
暂无
费用明细
-
押三付三
付款方式
-
4
租金(元/平米·天)
-
***
押金
-
***
服务费
- 房租含取暖费吗?
- 房租含物业费吗?
房源描述
东城东单
建成2004年
周边配套
地址:建国门内大街26号
- 免费咨询
- 专业服务
- 区域解读
- 户型分析
免责声明:房源信息由网站用户提供,其真实性、合法性由信息提供者负责,最终以政府部门登记备案为准。本网站内容凡涉及面积单位均为建筑面积,本网站不声明或保证内容之正确性和可靠性,租赁该房屋时,请谨慎核查。

