15000
元/月
面议
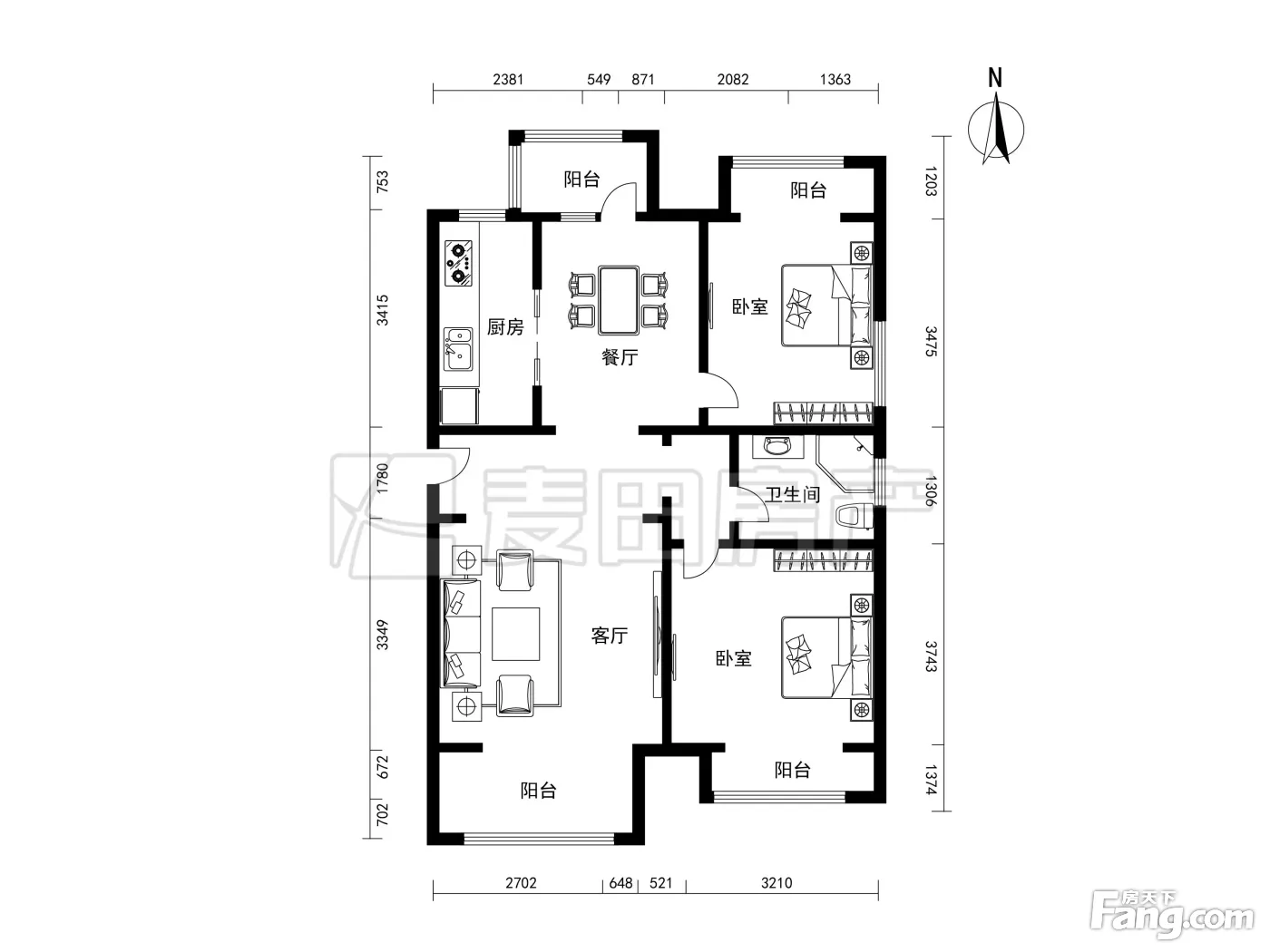
2室2厅中海紫御公馆
-
2室2厅1卫
整租
-
92㎡
面积
-
中层/26层
楼层
-
东南北
朝向
2025-09-29更新
租房不踩坑
3000+人正在热聊
加入群聊
-
看房
暂无
-
装修
豪华装修
-
入住
2025-08-30 00:00:00
-
咨询经纪人,了解更多房源信息
问一问
郑重提示:请您在签订合同之前,切勿支付任何形式的费用,以免上当受骗。
费用明细
-
面议
付款方式
-
15000
租金(元/月)
-
***
押金
-
***
服务费
- 房租含取暖费吗?
- 房租含物业费吗?
房源描述
-
房源亮点问经纪人
相信为您推荐的这套房子您一定会满意,赶快行动吧,先到先得! 房屋年代∶2011,面积∶92.0平方米,朝向∶东南北 1. 小区配备高端物业管理,让你享受宾至如归的服务; 2. 小区人文素质高,是您的居家的绝佳选择; 3. 小区居住安静舒适,让您拥有高品质的生活环境; 4. 小区绿化率高,绿树成荫鸟语花香让您随时呼吸到新鲜空气。
-
小区配套问经纪人
中海紫御公馆,中海地产2008年度力作,国之大宅辉煌鼎立,坐落于陶然桥东南侧,紧邻南二环,总占地面积11万平米,总建筑面积近40万平米。地铁4号线、5号线、8号线、14号线与公交线路交相辉映,构成的立体交通网络。由中海物业担纲物业服务管理,为业主提供全方位、细致入微的高端管家式服务。还为业主提供近4万平方米的商业配套,包括特色商业街、商业中心和写字楼底商,建成后社区将配有大中型超市、高档餐饮、精品店、完善的金融服务设施等商业配套,业主不出小区便可享受全面的精致服务。
-
服务介绍问经纪人
公司投诉电话:4007061188 公司投诉电话:4007061188
周边配套
地址:永定门西滨河路8号院(永定门桥西南200米)
- 免费咨询
- 专业服务
- 区域解读
- 户型分析
免责声明:房源信息由网站用户提供,其真实性、合法性由信息提供者负责,最终以政府部门登记备案为准。本网站内容凡涉及面积单位均为建筑面积,本网站不声明或保证内容之正确性和可靠性,租赁该房屋时,请谨慎核查。

