2200
元/月
押一付三
【二层三居】密云沿湖北区南北三居 2200/月 近密西公园
-
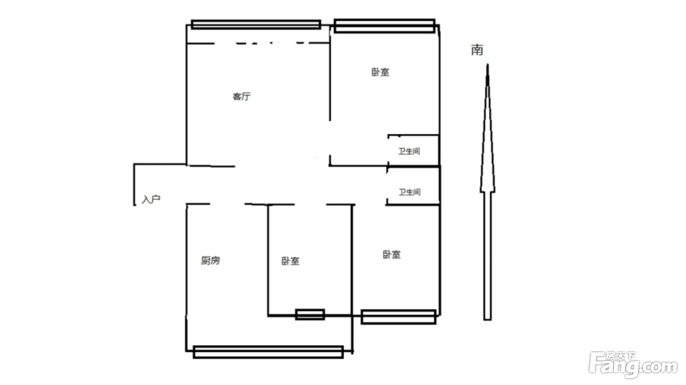
3室2厅2卫
整租
-
108.83㎡
面积
-
低层/6层
楼层
-
南北
朝向
2025-09-04更新
租房不踩坑
3000+人正在热聊
加入群聊
-
看房
电话预约
-
装修
中装修
-
入住
暂无
-
咨询经纪人,了解更多房源信息
问一问
郑重提示:请您在签订合同之前,切勿支付任何形式的费用,以免上当受骗。
费用明细
-
押一付三
付款方式
-
2200
租金(元/月)
-
***
押金
-
***
服务费
- 房租含取暖费吗?
- 房租含物业费吗?
房屋设施
- 床
- 宽带
- 暖气
- 电视
- 空调
- 冰箱
- 洗衣机
- 热水器
- 煤气
- 家具
- 微波炉
- 可做饭
- 卫生间
- 沙发
- 衣柜
- 阳台
- 电梯
- 油烟机
- 智能门锁
- 橱柜
- 燃气灶
- 电磁炉
- 餐桌
- 电话
- 厨具
- 独立卫生间
- 独立阳台
- 露台
- 阁楼
- 游泳池
- 阳光房
房源描述
-
房源亮点问经纪人
这套位于沿湖北区的三室两厅两卫住宅,南北通透的户型设计让每个房间都能享受到良好的采光和通风。108.83平米的宽敞空间搭配中档装修,配备了两个阳台、独立厨房和充足的储物空间,非常适合家庭居住。小区紧邻密西公园,环境优美宜人,是追求生活品质租客的理想选择。 房源位于6层住宅的低层,出入方便且避免了高层住宅的等电梯烦恼。每月仅需2200元的租金,在同等面积房源中性价比突出,押一付三的付款方式也减轻了租客的经济压力。周边生活配套成熟,新中街商圈近在咫尺,无论是日常购物还是休闲娱乐都十分便利。
-
服务介绍问经纪人
本人从事房地产经纪工作十多年,从业经验丰富,公司拥有大量房源,可为您提供满意房源,欢迎您来电咨询!!!
-
周边配套问经纪人
小区临近白河公园,遛弯遛娃,健身、跑步之佳地。小区内有蓝天幼儿园,大星发超市、临近沙河早市,就学、购物方便。
周边配套
地址:密云区新中街路西,临密西公园
- 免费咨询
- 专业服务
- 区域解读
- 户型分析
免责声明:房源信息由网站用户提供,其真实性、合法性由信息提供者负责,最终以政府部门登记备案为准。本网站内容凡涉及面积单位均为建筑面积,本网站不声明或保证内容之正确性和可靠性,租赁该房屋时,请谨慎核查。


