10000
元/月
年付
【花园别墅】密云别墅 精装4室2厅 年付 月租10000元
-
5室2厅3卫
整租
-
273㎡
面积
-
南
朝向
2025-09-04更新
租房不踩坑
3000+人正在热聊
加入群聊
-
看房
电话预约
-
装修
精装修
-
入住
暂无
-
咨询经纪人,了解更多房源信息
问一问
郑重提示:请您在签订合同之前,切勿支付任何形式的费用,以免上当受骗。
费用明细
-
年付
付款方式
-
10000
租金(元/月)
-
***
押金
-
***
服务费
- 房租含取暖费吗?
- 房租含物业费吗?
房屋设施
- 床
- 宽带
- 暖气
- 电视
- 空调
- 冰箱
- 洗衣机
- 热水器
- 煤气
- 家具
- 微波炉
- 可做饭
- 卫生间
- 沙发
- 衣柜
- 阳台
- 电梯
- 油烟机
- 智能门锁
- 橱柜
- 燃气灶
- 电磁炉
- 餐桌
- 电话
- 厨具
- 独立卫生间
- 独立阳台
- 露台
- 阁楼
- 游泳池
- 阳光房
房源描述
-
房源亮点问经纪人
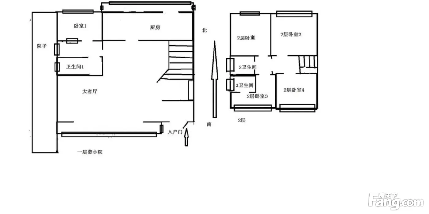
这套位于云秀花园红梅园的别墅,建筑面积273平米,采用精装修设计,空间宽敞明亮,居住舒适度高。户型为5室2厅3卫1厨2阳台,满足大家庭或高品质租客的居住需求。朝向南向,采光充足,室内通透,居住体验极佳。 别墅还配有,为住户提供休闲放松的私密空间,无论是家庭聚会还是个人休憩都非常合适。租金10000元/月,支持年付,性价比突出,适合追求高品质生活的租客。小区位于密云密溪路滨河大桥北800米,环境安静,周边自然景观优美,是远离城市喧嚣的理想居所。
-
小区配套问经纪人
房子目前空置,室内也是空房,可按租户需要,可配齐家电,也可空租,价格可议
-
周边配套问经纪人
云秀花园别墅,双侧花园,喜欢花草或种菜的可别错过。 上下两层布局,居住体验度高。 出小区西行,即是白河公园,环境优美,负氧离子高,适宜休闲、健身、跑步 小区门口也有公交站,家中有老人可自由出行。
周边配套
地址:密溪路滨河大桥北800米
- 免费咨询
- 专业服务
- 区域解读
- 户型分析
免责声明:房源信息由网站用户提供,其真实性、合法性由信息提供者负责,最终以政府部门登记备案为准。本网站内容凡涉及面积单位均为建筑面积,本网站不声明或保证内容之正确性和可靠性,租赁该房屋时,请谨慎核查。


