25000
元/月
押三付三
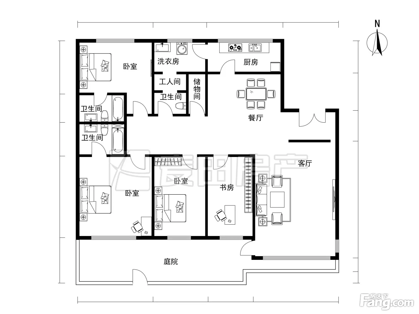
南北通透陶然湖景4室2厅精装修
-
4室2厅3卫
整租
-
192.88㎡
面积
-
底层/6层
楼层
-
南北
朝向
2026-01-14更新
租房不踩坑
3000+人正在热聊
加入群聊
-
看房
暂无
-
装修
精装修
-
入住
2025-01-15 00:00:00
-
咨询经纪人,了解更多房源信息
问一问
郑重提示:请您在签订合同之前,切勿支付任何形式的费用,以免上当受骗。
费用明细
-
押三付三
付款方式
-
25000
租金(元/月)
-
***
押金
-
***
服务费
- 房租含取暖费吗?
- 房租含物业费吗?
房屋设施
- 床
- 宽带
- 暖气
- 电视
- 空调
- 冰箱
- 洗衣机
- 热水器
- 煤气
- 家具
- 微波炉
- 可做饭
- 卫生间
- 沙发
- 衣柜
- 阳台
- 电梯
- 油烟机
- 智能门锁
- 橱柜
- 燃气灶
- 电磁炉
- 餐桌
- 电话
- 厨具
- 独立卫生间
- 独立阳台
- 露台
- 阁楼
- 游泳池
- 阳光房
房源描述
-
房源亮点问经纪人
1、属于成熟小区,可购房入户。 2、卧室私密性好,非常温馨,客厅宽敞,非常通风,很高。 3、楼层好,视野好,采光好。 4、看房特别方便,房东诚心出售 。 5、周边配套设施完善
-
小区配套问经纪人
景中有景,园中有园-陶然亭公园旁豪景公寓,全社区绿化景观设计,60万平米绿化范围内外环绕,悠然生活,自在惬意。简约欧式建筑,六层带电梯现代美学住宅-国际型大师风格,俐落线条与欧式窗棂完美演出,仿佛看见法国小镇风光移植北京市中心。二环内便利居家-昂立市中心绝佳美景之中,坐收二环便利交通脉络,菜市口大街直通西单、前门。
-
服务介绍问经纪人
本人从事房地产经纪行业多年,了解周边小区的物业及生活配套情况,客户满意,是我的职业追求,我相信,拥有专业的知识及真诚的服务才能获得共赢。
周边配套
地址:西城区龙爪槐胡同6号
- 免费咨询
- 专业服务
- 区域解读
- 户型分析
免责声明:房源信息由网站用户提供,其真实性、合法性由信息提供者负责,最终以政府部门登记备案为准。本网站内容凡涉及面积单位均为建筑面积,本网站不声明或保证内容之正确性和可靠性,租赁该房屋时,请谨慎核查。


