北三环马甸健德门,中国国际科技会展北环中心346平,带家具
-
4元/平米·天
租金
-
精装修
装修
-
346㎡
建筑面积
租房不踩坑
3000+人正在热聊
加入群聊
-
楼盘名称
中国国际科技会展中心
-
区域
朝阳
-
物业费
暂无
-
类型
纯写字楼
-
等级
暂无
-
挂牌时间
2024-10-25
-
支付方式
押一付三
-
入驻时间
2022-07-01
费用明细
-
押一付三
付款方式
-
4
租金(元/平米·天)
-
***
押金
-
***
服务费
- 房租含取暖费吗?
- 房租含物业费吗?
房源描述
-
房源亮点问经纪人
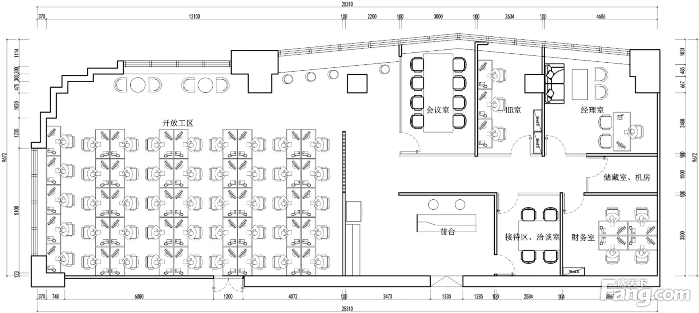
房源描述: 一、房源介绍 1)出租面积: 346㎡ 2)出租单价: 4元/㎡/天 3)装修标准: 精装修带家具,自行布局,利用 4)格局朝向: 户型方正,采光好 5)支付方式: 根据签约年限 面议 6)看房入住: 上班时间,预约即可,实地考察 二、交通介绍 地铁10号线健德门站,多条公交线路,交通路网发达便捷,十分适合商务出行与员工通勤
-
服务介绍问经纪人
您给我信任,我给您满意,9年从业经验为您解决各种难题,房源大同小异,高效率,选我就没错啦.
-
周边配套问经纪人
适合企业类型: 金融业、IT、软件研发、网络技术、科技等。 周边配套: 各大银行、餐饮、咖啡厅、酒店、便利店、超市等等
-
交通出行问经纪人
地铁10号线健德门站,多条公交线路,交通路网发达便捷,十分适合商务出行与员工通勤
朝阳安贞
建成2001年
建筑类型塔楼
周边配套
地址:裕民路12号
- 免费咨询
- 专业服务
- 区域解读
- 户型分析
免责声明:房源信息由网站用户提供,其真实性、合法性由信息提供者负责,最终以政府部门登记备案为准。本网站内容凡涉及面积单位均为建筑面积,本网站不声明或保证内容之正确性和可靠性,租赁该房屋时,请谨慎核查。

