100000
元/月
面议
西城区 前门琉璃厂宣武门 精装两进会所四合院出租 门前可停车
-
5室2厅4卫
整租
-
350㎡
面积
-
底层/1层
楼层
-
南北
朝向
2025-05-12更新
租房不踩坑
3000+人正在热聊
加入群聊
-
看房
随时看房
-
装修
豪华装修
-
入住
暂无
-
咨询经纪人,了解更多房源信息
问一问
郑重提示:请您在签订合同之前,切勿支付任何形式的费用,以免上当受骗。
费用明细
-
面议
付款方式
-
100000
租金(元/月)
-
***
押金
-
***
服务费
- 房租含取暖费吗?
- 房租含物业费吗?
房屋设施
- 床
- 宽带
- 暖气
- 电视
- 空调
- 冰箱
- 洗衣机
- 热水器
- 煤气
- 家具
- 微波炉
- 可做饭
- 卫生间
- 沙发
- 衣柜
- 阳台
- 电梯
- 油烟机
- 智能门锁
- 橱柜
- 燃气灶
- 电磁炉
- 餐桌
- 电话
- 厨具
- 独立卫生间
- 独立阳台
- 露台
- 阁楼
- 游泳池
- 阳光房
房源描述
-
房源亮点问经纪人
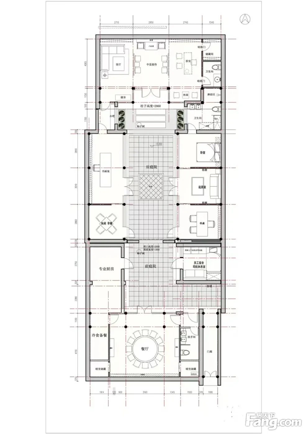
【位置】坐落西城区:大栅栏附近 【规模】占地350平米 【停车】有车位 【家具家电】地暖,空调,全套会所级家具 【空间功能】会客厅,洽谈室,卧室,休闲办公区,餐厅,茶室,,专业厨房、地上一层,包含游
-
小区配套问经纪人
【目前状态】空置中 【描述】由建筑设计师亲历设计、改造。设计理念以新中式建筑与园林风格相结合,古典中包含现代新中式元素,兼顾传统与舒适性,呈现出与众不同的设计风格,附近,临街地铁,四通八达 环境优势:环境优雅,胡同宽敞可进出车,方正,私密性强空间感大、适合集团办公、高端会所、私人展览、商务宴请、大型会客等。
-
服务介绍问经纪人
尊敬的客户,本人15年时间一直从事房地产工作,我很感谢这15年中客户对我的每一次认可,本人手中将近200套四合院独栋资源,只要您一个电话,带您看遍北京四合院时间在变,服务不变,真诚服务,一个月
-
周边配套问经纪人
附近有便利店,超市,药房,饭店等,临近地铁,公交,可以在2-8内步行至地铁公交站。
-
交通出行问经纪人
紧邻主路,双地铁,多条公交专线,交通便利
周边配套
地址:西城区大栅栏西街西铁树斜街
- 免费咨询
- 专业服务
- 区域解读
- 户型分析
免责声明:房源信息由网站用户提供,其真实性、合法性由信息提供者负责,最终以政府部门登记备案为准。本网站内容凡涉及面积单位均为建筑面积,本网站不声明或保证内容之正确性和可靠性,租赁该房屋时,请谨慎核查。


