首钢·璟悦长安
别名:璟悦家园
- 均价
62000元/平方米
- 地址
动态首钢·璟悦长安项目首开热销217套
[ 2025-07-09 10:28:30 ] 首钢·璟悦长安项目位于古城街道体育场南街与人民渠路交叉口西北角,紧邻地铁1号线支线(建设中),未来与11号线二期(规划中)形成换乘枢纽,步行约300米即达地铁站。作为石景山好房子项目,璟悦长安项目首次开盘就创造热销217套的成绩,首开房源持续递减中,敬请关注!
动态首钢·璟悦长安预计本周六开盘
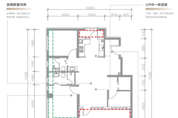
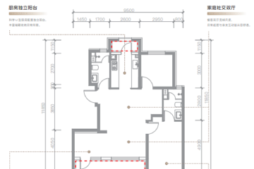
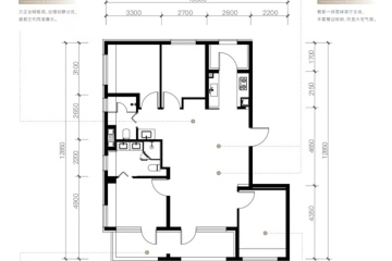
[ 2025-07-04 15:09:24 ] 根据北京市住建委网站公示,首钢·璟悦长安(备案名:璟悦家园),于2025年7月4日取得预售许可证,预售证号为:京房售证字(2025)73号。本次获批16栋楼,共700套房源,准许销售面积:74143.29㎡。预计本周六(7月5日)开盘,均价61000元/平。首钢·璟悦长安位于石景山古城街道体育场南街与人民渠路交叉口西北角。项目规划16栋6-18层住宅,楼栋至高54.6米,18层,层高3-3.1米,建面约80-130㎡满装智慧好房子。
- 主力户型
2/3/4居室 83-133㎡
- 项目特色
五至六环
- 开盘时间
2025年7月5日开盘
- 交房时间
2027.12.31
- 装修状况
暂无
- 开发商
北京首景房地产开发有限公司
- 绿化率
30.00
- 容积率
2.71
展开
地理位置 交通 配套都很好,还是第四代住宅,值得购买。

北京宸园
120000元/平方米朝阳-酒仙桥用户评分9.47分
在售四至五环品牌地产国际化社区景观居所豪华居住区水景地产装修交付地铁沿线改善优选
中海·京華玖序
175000元/平方米西城用户评分9.46分
在售二环以内低密居所品牌地产豪华居住区花园洋房景观居所城市中心地产装修交付地铁沿线
海淀南路12号
143000元/平方米海淀-苏州桥用户评分9.55分
在售三至四环准现房城市中心地产地铁沿线
国安府
165000元/平方米西城-宣武门用户评分9.61分
在售二环以内品牌地产景观居所城市中心地产改善优选地铁沿线
印香山
121000元/平方米海淀-八大处用户评分9.07分
在售五至六环低密居所品牌地产豪华居住区山景地产景观居所改善优选装修交付大平层
免责声明:本站楼盘信息旨在为用户提供更多信息的无偿服务,信息以政府部门登记备案为准,请谨慎核查。








































































