小区信息全方位解读
小区概览
基础信息
- 建筑年代
1996
- 住宅类别
普通住宅
- 开发企业
南通华威房地产拓展有限公司南通市房
- 物业公司
没物业
- 小区地址
三厂镇钟楼路
- 附近学校
南通市海门区三厂幼儿园,三厂小学,海门区三厂中学
小区评分
综合测评得分
- 小区品质8.3
价格指数
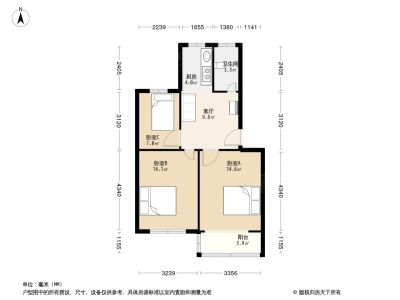
户型分析
户型
户型齐全,主打户型方正,明厨,明卫三居
厂南新村户型主要有69平-144平的户型方正,明厨,明卫的三居 、50平-80平的户型方正,明厨,明卫的二居 、137平-137平的户型方正,明厨,明卫的四居 。
*获取完整户型报告,同时会有免费语音讲解服务
在售户型分布
居住品质
容积率
该小区容积率为1.8 ,建筑密度高于57%的同区域小区。
- 该小区1.8
- 区域均值1.6
绿化率
该小区绿化率30%,高于26%的同区域小区(住宅小区绿化率标准:居住小区绿地面积占用地总面积应在30%以上,中心城区不低于25%。绿化率越高,居住环境更优美,空气更清新)。
- 该小区30%
- 区域均值30%
楼龄
该房源楼龄28年,比9%的同区域房源更年轻(楼龄高的房子一般比较陈旧,房屋质量难以保证且维护度较低。楼龄直接影响贷款年限,一般楼龄越大相应贷款年限越小,太老的房源可能存在无法放贷的问题,详细情况建议咨询经纪人)。
- 该小区28
- 区域均值13.8
小区设施

健身设施

地下停车库

儿童游乐

超市

运动场地

卫生服务

快递柜

老年活动中心
物业服务
软件服务
- 物业服务费:
1元/㎡·月
- 物业公司:
没物业
硬件设施
- 1.8
容积率
- 30%
绿化率
便利指数
交通配套
周边2km(直线距离)内共有0个地铁站;21个公交站:厂南新村,厂南村等。
该小区交通配套得分优于20%的本区域小区相对属于交通配套高的小区(交通配套越好,出行就越便利,房产越保值、增值,交通配套综合考量配套数量、距离等因素。)
- 该小区021
- 区域均值40
教育配套
周边3km(直线距离)内共有2个幼儿园:南通市海门区三厂幼儿园,海门区三厂幼儿园等; 5个小学:三厂小学,三厂镇第二小学等; 1个中学:海门区三厂中学。
该小区教育配套得分优于18%的本区域小区相对属于教育配套高的小区(学校配套越好,入学越便利,房产越保值、增值。学校配套综合考虑配套数量、距离、学校等级等因素。)
- 该小区251
- 区域均值1765
医疗配套
周边3km(直线距离)内共有2个医院,其中三甲医院有0个。
该小区医疗配套得分优于55%的本区域小区相对属于医疗配套适中的小区(医疗配套越好,就医就越便利,房产越保值、增值。医院配套综合考虑配套数量、距离、医院等级等因素。)
- 该小区20
- 区域均值2
购物配套
周边3km(直线距离)内共有1个购物中心:东城生活广场; 67个超市:苏乐商店,乐其中超市等。
该小区购物配套得分优于18%的本区域小区相对属于购物配套适中的小区(购物配套越好,购物就越便利,房产越保值、增值。购物配套综合考虑配套数量、距离、大小等因素。)
- 该小区167
- 区域均值7202
休闲配套
周边3km(直线距离)内共有4个公园:大生三厂钟楼,百姓广场等。
该小区休闲配套得分优于24%的本区域小区相对属于休闲配套高的小区(休闲配套越好,休闲娱乐就越便利,房产越保值、增值。休闲配套综合考虑配套数量、距离、大小等因素。)
- 该小区4
- 区域均值11

南通的买房族都在看
南通二手房·用户看房报告
看看关注该小区的人有哪些偏好

免责声明: 1、文中涉及的价格等信息仅供参考,如有变化请以实际交易情况为准。 2、文中的距离信息均来自于百度地图测距,与实际情况可能略有偏差,仅供参考。 3、文中关于绿化率,容积率等信息来自于编辑实勘,或通过物业介绍、房产证等渠道获取。因时间变化,与实际情况可能略有偏差,仅供参考。 4、因时间、市场、政策等会发生变化,文中信息仅供参考,不作为交易依据使用。 5、文章中的面积指的是建筑面积。 6、本篇攻略中所有图片均有版权,如需转载请注明来源。
















































