小区信息全方位解读
小区概览
基础信息
- 建筑年代
1995
- 住宅类别
普通住宅
- 开发企业
陕西亿润经贸有限公司
- 小区地址
呼和浩特市回民区奥威花园北门
- 附近学校
呼和浩特市回民区爱博幼儿园,营坊道回族小学,呼和浩特市回民中学
小区评分
综合测评得分
- 小区品质7.8
- 户型评分9.5
价格指数
租房
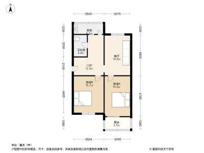
户型分析
户型
户型齐全,主打户型方正,明厨,客厅朝南,主卧朝南二居
电影公司宿舍户型主要有46平-81平的户型方正,明厨,客厅朝南,主卧朝南的二居 、38平-38平的户型方正,主卧朝南的一居 。
*获取完整户型报告,同时会有免费语音讲解服务
在售户型分布
居住品质
容积率
该小区容积率为10 ,建筑密度高于84%的同区域小区。
- 该小区10
- 区域均值2.5
绿化率
该小区绿化率10%,高于12%的同区域小区(住宅小区绿化率标准:居住小区绿地面积占用地总面积应在30%以上,中心城区不低于25%。绿化率越高,居住环境更优美,空气更清新)。
- 该小区10%
- 区域均值24%
楼龄
该房源楼龄29年,比28%的同区域房源更年轻(楼龄高的房子一般比较陈旧,房屋质量难以保证且维护度较低。楼龄直接影响贷款年限,一般楼龄越大相应贷款年限越小,太老的房源可能存在无法放贷的问题,详细情况建议咨询经纪人)。
- 该小区29
- 区域均值27.6
小区设施

健身设施

地下停车库

儿童游乐

超市

运动场地

卫生服务

快递柜

老年活动中心
物业服务
软件服务
- 物业服务费:
0.8元/㎡·月
硬件设施
- 10
容积率
- 10%
绿化率
便利指数
交通配套
周边2km(直线距离)内共有7个地铁站:附属医院,新华广场等;73个公交站:文化宫街北口,医科大学等。
该小区交通配套得分优于48%的本区域小区相对属于交通配套高的小区(交通配套越好,出行就越便利,房产越保值、增值,交通配套综合考量配套数量、距离等因素。)
- 该小区773
- 区域均值669
教育配套
周边3km(直线距离)内共有88个幼儿园:呼和浩特市回民区爱博幼儿园,回民区第五幼儿园等; 48个小学:营坊道回族小学,通道街回族小学等; 27个中学:呼和浩特市回民中学,呼和浩特市第五中学等。
该小区教育配套得分优于16%的本区域小区相对属于教育配套高的小区(学校配套越好,入学越便利,房产越保值、增值。学校配套综合考虑配套数量、距离、学校等级等因素。)
- 该小区884827
- 区域均值854327
医疗配套
周边3km(直线距离)内共有21个医院,其中三甲医院有0个。
该小区医疗配套得分优于49%的本区域小区相对属于医疗配套高的小区(医疗配套越好,就医就越便利,房产越保值、增值。医院配套综合考虑配套数量、距离、医院等级等因素。)
- 该小区210
- 区域均值20
购物配套
周边3km(直线距离)内共有43个购物中心:大统,大统购物广场等; 1118个超市:甫宪超市,一团火(奥威南门031店)等。
该小区购物配套得分优于38%的本区域小区相对属于购物配套高的小区(购物配套越好,购物就越便利,房产越保值、增值。购物配套综合考虑配套数量、距离、大小等因素。)
- 该小区431118
- 区域均值411042
休闲配套
周边3km(直线距离)内共有77个公园:新华大街与通道北路交会处西南角花境,同心公园等。
该小区休闲配套得分优于39%的本区域小区相对属于休闲配套高的小区(休闲配套越好,休闲娱乐就越便利,房产越保值、增值。休闲配套综合考虑配套数量、距离、大小等因素。)
- 该小区77
- 区域均值72

呼和浩特的买房族都在看
呼和浩特二手房·用户看房报告
看看关注该小区的人有哪些偏好

免责声明: 1、文中涉及的价格等信息仅供参考,如有变化请以实际交易情况为准。 2、文中的距离信息均来自于百度地图测距,与实际情况可能略有偏差,仅供参考。 3、文中关于绿化率,容积率等信息来自于编辑实勘,或通过物业介绍、房产证等渠道获取。因时间变化,与实际情况可能略有偏差,仅供参考。 4、因时间、市场、政策等会发生变化,文中信息仅供参考,不作为交易依据使用。 5、文章中的面积指的是建筑面积。 6、本篇攻略中所有图片均有版权,如需转载请注明来源。






