小区信息全方位解读
小区概览
基础信息
- 建筑年代
2023
- 住宅类别
普通住宅,洋房
- 开发企业
成都曜泰房地产开发有限公司
- 物业公司
南京朗诗物业管理有限公司成都分公司
- 小区地址
驷马桥二路77号
- 附近学校
成都市第十二幼儿园西区,成都市石室小学育贤分校,牛津国际公学成都学校
大事记
- 2023年竣工时间
- 2023年交房时间
小区评分
综合测评得分
- 小区品质8.8
户型分析
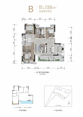
户型
户型齐全,主打全明格局,户型方正三居
朗诗和风印悦户型主要有119平-119平的全明格局,户型方正的三居 、138平-138平的全明格局,户型方正的四居 。
*获取完整户型报告,同时会有免费语音讲解服务
在售户型分布
居住品质
小区设施

健身设施

地下停车库

儿童游乐

超市

运动场地

卫生服务

快递柜

老年活动中心
物业服务
软件服务
- 物业服务费:
3元/㎡·月
- 物业公司:
南京朗诗物业管理有限公司成都分公司
便利指数
交通配套
周边2km(直线距离)内共有6个地铁站:府青路,李家沱等;146个公交站:府青路三段站,高车三路等。
该小区交通配套得分优于20%的本区域小区相对属于交通配套高的小区(交通配套越好,出行就越便利,房产越保值、增值,交通配套综合考量配套数量、距离等因素。)
- 该小区6146
- 区域均值5140
教育配套
周边3km(直线距离)内共有84个幼儿园:成都市第十二幼儿园西区,桃蹊社区幼儿园等; 36个小学:成都市石室小学育贤分校,成华实验小学(北校区)等; 17个中学:牛津国际公学成都学校,四川省成都华西中学等。
该小区教育配套得分优于96%的本区域小区相对属于教育配套高的小区(学校配套越好,入学越便利,房产越保值、增值。学校配套综合考虑配套数量、距离、学校等级等因素。)
- 该小区843617
- 区域均值893018
医疗配套
周边3km(直线距离)内共有32个医院,其中三甲医院有0个。
该小区医疗配套得分优于98%的本区域小区相对属于医疗配套高的小区(医疗配套越好,就医就越便利,房产越保值、增值。医院配套综合考虑配套数量、距离、医院等级等因素。)
- 该小区320
- 区域均值31
购物配套
周边3km(直线距离)内共有42个购物中心:王府井购物中心·西南区域(永立·星城都店),英普王府井(Discovery王府井店)等; 1442个超市:惠宜超市,全时便利店(永立星城都店)等。
该小区购物配套得分优于96%的本区域小区相对属于购物配套高的小区(购物配套越好,购物就越便利,房产越保值、增值。购物配套综合考虑配套数量、距离、大小等因素。)
- 该小区421442
- 区域均值371357
休闲配套
周边3km(直线距离)内共有86个公园:红楼·1956,万福桥等。
该小区休闲配套得分优于85%的本区域小区相对属于休闲配套高的小区(休闲配套越好,休闲娱乐就越便利,房产越保值、增值。休闲配套综合考虑配套数量、距离、大小等因素。)
- 该小区86
- 区域均值76

成都的买房族都在看
成都二手房·用户看房报告
看看关注该小区的人有哪些偏好

免责声明: 1、文中涉及的价格等信息仅供参考,如有变化请以实际交易情况为准。 2、文中的距离信息均来自于百度地图测距,与实际情况可能略有偏差,仅供参考。 3、文中关于绿化率,容积率等信息来自于编辑实勘,或通过物业介绍、房产证等渠道获取。因时间变化,与实际情况可能略有偏差,仅供参考。 4、因时间、市场、政策等会发生变化,文中信息仅供参考,不作为交易依据使用。 5、文章中的面积指的是建筑面积。 6、本篇攻略中所有图片均有版权,如需转载请注明来源。




