小区信息全方位解读
小区概览
基础信息
- 建筑年代
2007
- 住宅类别
普通住宅
- 开发企业
成都森宇实业集团有限公司
- 物业公司
成都市森宇物业有限责任公司
- 小区地址
同兴东路398号
- 附近学校
成都市温江区雅稚幼儿园,成都市温江区光华实验小学,温江中学
大事记
- 2006年开工时间
- 2007年竣工时间
- 2007年交房时间
小区评分
综合测评得分
- 小区品质8.5
- 户型评分9.0
- 区位交通9.2
- 教育资源9.2
- 生活服务9.7
价格指数
租房
户型分析
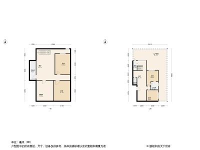
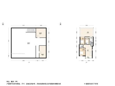
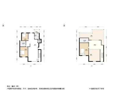
户型
户型齐全,主打客厅朝南,双阳台二居
森宇美茵河谷户型主要有87平-154平的客厅朝南,双阳台的二居 、127平-140平的户型方正,明卫,客厅朝南,主卧朝南的三居 、130平-217平的明卫,客厅朝南的四居 。
*获取完整户型报告,同时会有免费语音讲解服务
在售户型分布
居住品质
容积率
该小区容积率为1.9 ,建筑密度高于29%的同区域小区。
- 该小区1.9
- 区域均值2.8
绿化率
该小区绿化率50%,高于82%的同区域小区(住宅小区绿化率标准:居住小区绿地面积占用地总面积应在30%以上,中心城区不低于25%。绿化率越高,居住环境更优美,空气更清新)。
- 该小区50%
- 区域均值40%
楼龄
该房源楼龄17年,比23%的同区域房源更年轻(楼龄高的房子一般比较陈旧,房屋质量难以保证且维护度较低。楼龄直接影响贷款年限,一般楼龄越大相应贷款年限越小,太老的房源可能存在无法放贷的问题,详细情况建议咨询经纪人)。
- 该小区17
- 区域均值14.3
小区设施

健身设施

地下停车库

儿童游乐

超市

运动场地

卫生服务

快递柜

老年活动中心
物业服务
软件服务
- 物业服务费:
1.2元/㎡·月
- 物业公司:
成都市森宇物业有限责任公司
硬件设施
- 1.9
容积率
- 50%
绿化率
便利指数
交通配套
周边2km(直线距离)内共有3个地铁站:涌泉,光华公园等;86个公交站:温泉大道站,同兴东路站等。
该小区交通配套得分优于63%的本区域小区相对属于交通配套高的小区(交通配套越好,出行就越便利,房产越保值、增值,交通配套综合考量配套数量、距离等因素。)
- 该小区386
- 区域均值371
教育配套
周边3km(直线距离)内共有69个幼儿园:成都市温江区雅稚幼儿园,成都市温江区阳光森林幼儿园等; 8个小学:成都市温江区光华实验小学,花都小学等; 9个中学:温江中学,成都市实验外国语学校等。
该小区教育配套得分优于90%的本区域小区相对属于教育配套高的小区(学校配套越好,入学越便利,房产越保值、增值。学校配套综合考虑配套数量、距离、学校等级等因素。)
- 该小区6989
- 区域均值6277
医疗配套
周边3km(直线距离)内共有9个医院,其中三甲医院有0个。
该小区医疗配套得分优于61%的本区域小区相对属于医疗配套适中的小区(医疗配套越好,就医就越便利,房产越保值、增值。医院配套综合考虑配套数量、距离、医院等级等因素。)
- 该小区90
- 区域均值8
购物配套
周边3km(直线距离)内共有4个购物中心:伊藤洋华堂,成都合生汇等; 600个超市:友邻社区连锁超市(森宇店),森宇便利店等。
该小区购物配套得分优于65%的本区域小区相对属于购物配套高的小区(购物配套越好,购物就越便利,房产越保值、增值。购物配套综合考虑配套数量、距离、大小等因素。)
- 该小区4600
- 区域均值5578
休闲配套
周边3km(直线距离)内共有36个公园:光华梧桐公园,天来国际文化广场等。
该小区休闲配套得分优于62%的本区域小区相对属于休闲配套高的小区(休闲配套越好,休闲娱乐就越便利,房产越保值、增值。休闲配套综合考虑配套数量、距离、大小等因素。)
- 该小区36
- 区域均值33

成都的买房族都在看
成都二手房·用户看房报告
看看关注该小区的人有哪些偏好

免责声明: 1、文中涉及的价格等信息仅供参考,如有变化请以实际交易情况为准。 2、文中的距离信息均来自于百度地图测距,与实际情况可能略有偏差,仅供参考。 3、文中关于绿化率,容积率等信息来自于编辑实勘,或通过物业介绍、房产证等渠道获取。因时间变化,与实际情况可能略有偏差,仅供参考。 4、因时间、市场、政策等会发生变化,文中信息仅供参考,不作为交易依据使用。 5、文章中的面积指的是建筑面积。 6、本篇攻略中所有图片均有版权,如需转载请注明来源。






















































