小区信息全方位解读
小区概览
基础信息
- 建筑年代
2007
- 住宅类别
普通住宅
- 开发企业
成都万博置业有限公司
- 物业公司
小区物业
- 小区地址
天缘路二段278号
- 附近学校
天缘世家幼儿园,新都区天元小学,西南石油大学附属初级中学
大事记
- 2007年竣工时间
小区评分
综合测评得分
- 小区品质8.9
- 户型评分9.2
- 区位交通9.2
- 教育资源9.2
- 生活服务10.0
价格指数
租房
户型分析
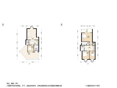
户型
户型齐全,主打户型方正,客厅朝南,明卫,双卧朝南四居
博雅桂湖郡户型主要有169平-194平的户型方正,客厅朝南,明卫,双卧朝南的四居 、113平-122平的户型方正,明卫,客厅朝南的三居 。
*获取完整户型报告,同时会有免费语音讲解服务
在售户型分布
居住品质
容积率
该小区容积率为1.1 ,建筑密度高于2%的同区域小区。
- 该小区1.1
- 区域均值1.9
绿化率
该小区绿化率42%,高于72%的同区域小区(住宅小区绿化率标准:居住小区绿地面积占用地总面积应在30%以上,中心城区不低于25%。绿化率越高,居住环境更优美,空气更清新)。
- 该小区42%
- 区域均值24%
楼龄
该房源楼龄17年,比84%的同区域房源更年轻(楼龄高的房子一般比较陈旧,房屋质量难以保证且维护度较低。楼龄直接影响贷款年限,一般楼龄越大相应贷款年限越小,太老的房源可能存在无法放贷的问题,详细情况建议咨询经纪人)。
- 该小区17
- 区域均值23.8
小区设施

健身设施

地下停车库

儿童游乐

超市

运动场地

卫生服务

快递柜

老年活动中心
物业服务
软件服务
- 物业服务费:
0.6元/㎡·月
- 物业公司:
小区物业
硬件设施
- 1.1
容积率
- 42%
绿化率
便利指数
交通配套
周边2km(直线距离)内共有3个地铁站:团结新区,锦水河等;91个公交站:昊天苑,香洲南亭站等。
该小区交通配套得分优于84%的本区域小区相对属于交通配套高的小区(交通配套越好,出行就越便利,房产越保值、增值,交通配套综合考量配套数量、距离等因素。)
- 该小区391
- 区域均值295
教育配套
周边3km(直线距离)内共有60个幼儿园:天缘世家幼儿园,新都区雅丽幼儿园等; 11个小学:新都区天元小学,成都市新都区教科院附属小学等; 8个中学:西南石油大学附属初级中学,新都一中实验学校等。
该小区教育配套得分优于74%的本区域小区相对属于教育配套高的小区(学校配套越好,入学越便利,房产越保值、增值。学校配套综合考虑配套数量、距离、学校等级等因素。)
- 该小区60118
- 区域均值50106
医疗配套
周边3km(直线距离)内共有7个医院,其中三甲医院有0个。
该小区医疗配套得分优于34%的本区域小区相对属于医疗配套高的小区(医疗配套越好,就医就越便利,房产越保值、增值。医院配套综合考虑配套数量、距离、医院等级等因素。)
- 该小区70
- 区域均值7
购物配套
周边3km(直线距离)内共有12个购物中心:百郦云阶,海乐荟等; 776个超市:闽亿超市,芙蓉兴盛超市(自富路店)等。
该小区购物配套得分优于66%的本区域小区相对属于购物配套高的小区(购物配套越好,购物就越便利,房产越保值、增值。购物配套综合考虑配套数量、距离、大小等因素。)
- 该小区12776
- 区域均值9586
休闲配套
周边3km(直线距离)内共有40个公园:安全文化广场,百龙门等。
该小区休闲配套得分优于83%的本区域小区相对属于休闲配套高的小区(休闲配套越好,休闲娱乐就越便利,房产越保值、增值。休闲配套综合考虑配套数量、距离、大小等因素。)
- 该小区40
- 区域均值33

成都的买房族都在看
成都二手房·用户看房报告
看看关注该小区的人有哪些偏好

免责声明: 1、文中涉及的价格等信息仅供参考,如有变化请以实际交易情况为准。 2、文中的距离信息均来自于百度地图测距,与实际情况可能略有偏差,仅供参考。 3、文中关于绿化率,容积率等信息来自于编辑实勘,或通过物业介绍、房产证等渠道获取。因时间变化,与实际情况可能略有偏差,仅供参考。 4、因时间、市场、政策等会发生变化,文中信息仅供参考,不作为交易依据使用。 5、文章中的面积指的是建筑面积。 6、本篇攻略中所有图片均有版权,如需转载请注明来源。




















