小区信息全方位解读
小区概览
基础信息
- 建筑年代
2002
- 住宅类别
普通住宅
- 开发企业
四川川开实业发展有限公司
- 物业公司
南洋物业管理公司
- 小区地址
丽都街15号
- 附近学校
金豆豆幼儿园,四川天府新区华阳实验小学,华阳中学
大事记
- 2002年竣工时间
- 2005年开盘时间
- 2005年交房时间
小区评分
综合测评得分
- 小区品质8.4
- 户型评分8.9
- 区位交通9.2
- 教育资源9.2
- 生活服务10.0
价格指数
租房
户型分析
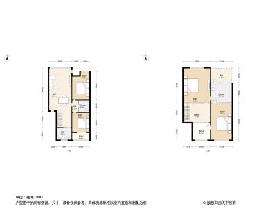
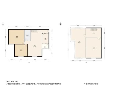
户型
户型齐全,主打户型方正,明厨,客厅朝南三居
丽都新城一期户型主要有103平-150平的户型方正,明厨,客厅朝南的三居 、80平-91平的明厨,双阳台的二居 、131平-148平的户型方正,明厨,客厅朝南的四居 。
*获取完整户型报告,同时会有免费语音讲解服务
在售户型分布
居住品质
容积率
该小区容积率为2 ,建筑密度高于34%的同区域小区。
- 该小区2
- 区域均值2.5
绿化率
该小区绿化率31%,高于53%的同区域小区(住宅小区绿化率标准:居住小区绿地面积占用地总面积应在30%以上,中心城区不低于25%。绿化率越高,居住环境更优美,空气更清新)。
- 该小区31%
- 区域均值32%
楼龄
该房源楼龄22年,比56%的同区域房源更年轻(楼龄高的房子一般比较陈旧,房屋质量难以保证且维护度较低。楼龄直接影响贷款年限,一般楼龄越大相应贷款年限越小,太老的房源可能存在无法放贷的问题,详细情况建议咨询经纪人)。
- 该小区22
- 区域均值24.5
小区设施

健身设施

地下停车库

儿童游乐

超市

运动场地

卫生服务

快递柜

老年活动中心
物业服务
软件服务
- 物业服务费:
0.5元/㎡·月
- 物业公司:
南洋物业管理公司
硬件设施
- 2
容积率
- 31%
绿化率
便利指数
交通配套
周边2km(直线距离)内共有5个地铁站:华阳,四河等;103个公交站:丽都街西站,正东上街等。
该小区交通配套得分优于92%的本区域小区相对属于交通配套高的小区(交通配套越好,出行就越便利,房产越保值、增值,交通配套综合考量配套数量、距离等因素。)
- 该小区5103
- 区域均值395
教育配套
周边3km(直线距离)内共有89个幼儿园:金豆豆幼儿园,红樱美幼儿园(中兴下街)等; 13个小学:四川天府新区华阳实验小学,四川天府新区华阳实验小学(西区)等; 6个中学:华阳中学,益民学校等。
该小区教育配套得分优于75%的本区域小区相对属于教育配套高的小区(学校配套越好,入学越便利,房产越保值、增值。学校配套综合考虑配套数量、距离、学校等级等因素。)
- 该小区89136
- 区域均值83115
医疗配套
周边3km(直线距离)内共有6个医院,其中三甲医院有0个。
该小区医疗配套得分优于77%的本区域小区相对属于医疗配套适中的小区(医疗配套越好,就医就越便利,房产越保值、增值。医院配套综合考虑配套数量、距离、医院等级等因素。)
- 该小区60
- 区域均值5
购物配套
周边3km(直线距离)内共有15个购物中心:艺苑商城(正东上街华阳商业步行街店),缤纷广场等; 782个超市:欣诚副食(丽都街店),丽都副食等。
该小区购物配套得分优于59%的本区域小区相对属于购物配套高的小区(购物配套越好,购物就越便利,房产越保值、增值。购物配套综合考虑配套数量、距离、大小等因素。)
- 该小区15782
- 区域均值15773
休闲配套
周边3km(直线距离)内共有72个公园:米诺公园,一号亭等。
该小区休闲配套得分优于46%的本区域小区相对属于休闲配套高的小区(休闲配套越好,休闲娱乐就越便利,房产越保值、增值。休闲配套综合考虑配套数量、距离、大小等因素。)
- 该小区72
- 区域均值70

成都的买房族都在看
成都二手房·用户看房报告
看看关注该小区的人有哪些偏好

免责声明: 1、文中涉及的价格等信息仅供参考,如有变化请以实际交易情况为准。 2、文中的距离信息均来自于百度地图测距,与实际情况可能略有偏差,仅供参考。 3、文中关于绿化率,容积率等信息来自于编辑实勘,或通过物业介绍、房产证等渠道获取。因时间变化,与实际情况可能略有偏差,仅供参考。 4、因时间、市场、政策等会发生变化,文中信息仅供参考,不作为交易依据使用。 5、文章中的面积指的是建筑面积。 6、本篇攻略中所有图片均有版权,如需转载请注明来源。





























