1/14
亦久亦旧704
关注

南京东郊中式合院别墅🏡自家闲置寻有缘人

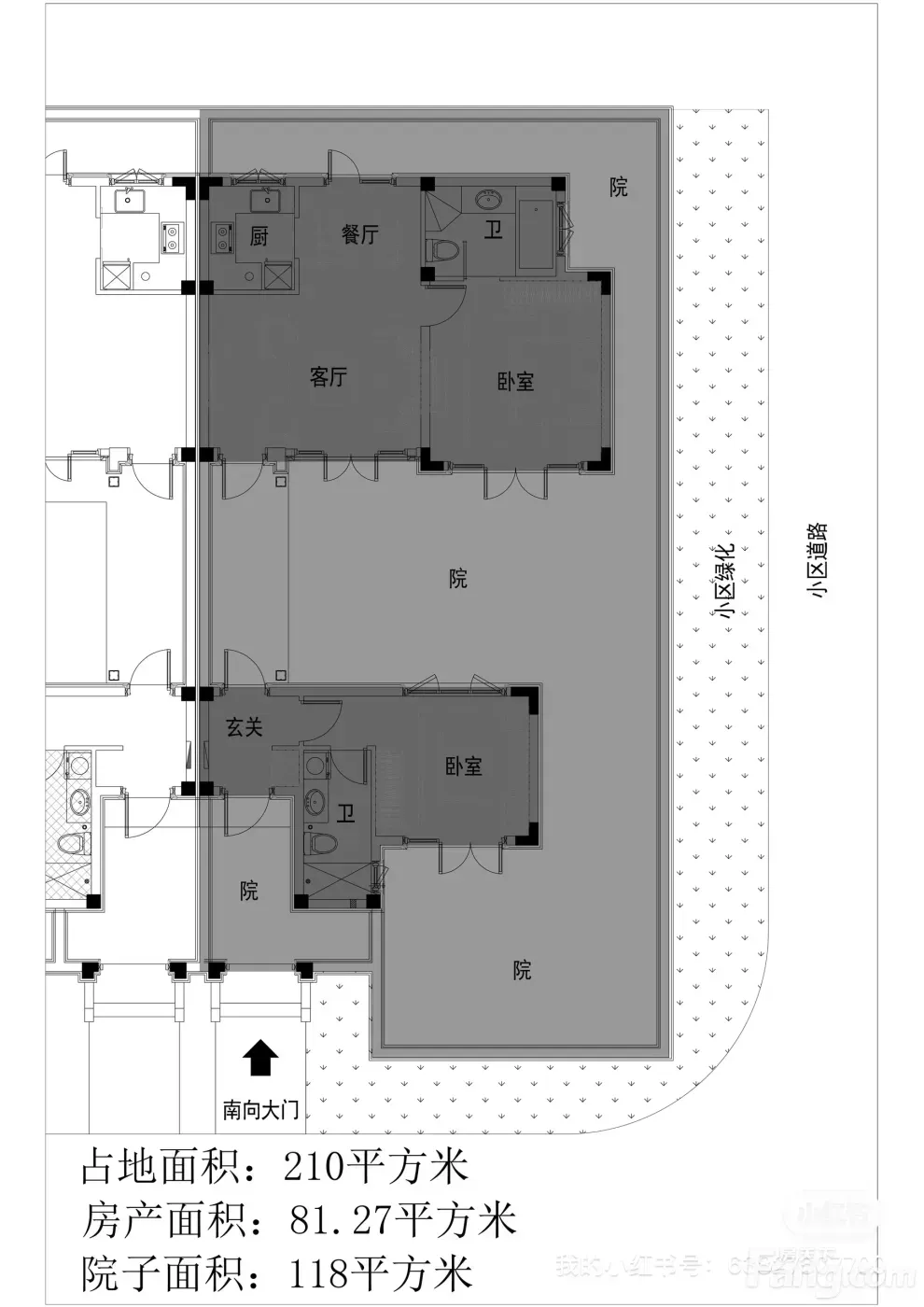
兄弟姐妹们!忍痛挂出我家这套神仙中式合院!2021年建的单层别墅现在真的太难得了,产证81㎡但实际占地210㎡,光是院子就有120㎡!✨

我家这套在春风江南花园,南北通透两室两厅,推窗就是赤山湖湿地,背靠赤山面朝秦淮河源头,风水绝佳!两个套间被院子环抱,春天听鸟叫秋天闻桂香,两个女儿从小在这儿撒欢长大~

交通超方便!宁杭高速郭庄出口两个红绿灯直达,南京主城半小时生活圈。现在娃去城里上学了,房子空着真心浪费,适合想退休养老或追求自然的家庭~

重点!自家珍藏价230万,带全套院子家具!有缘的宝子随时来看房,拎包就能享受田园诗意啦~🌿🐦

编辑于2025-09-21 镇江

投诉
说点什么…