1/5
房产私享会
关注

开璞园共有产权房真香?入住半年后我哭了...

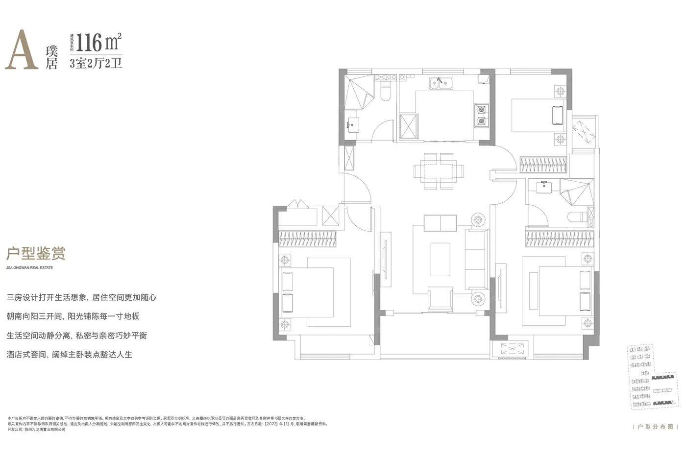
花一半钱就能住洋房?先别急着心动!在开璞园住了半年,终于看清共有产权的真相!优点确实诱人:邗江8300/m²的实景洋房,35%绿化率搭配1.1低密容积率,115㎡户型三开间朝南带双卫,主卧飘窗改造成咖啡角绝绝子!但这三个致命伤你必须知道:1️⃣朴席镇到市区通勤40分钟起,家门口公交半小时一班;2️⃣底商还没开齐,买个菜得跨镇去大润发;3️⃣虽说是共有产权,维修基金和物业费得100%自己扛。要说居住体验,早晨被鸟鸣叫醒是真的,周末瘫在飘窗看云卷云舒也是真的。可当同事聚餐总说"你家太远了",孩子周末兴趣班要跨三个区,这容器里的生活终究要自己调味。

该内容疑似使用AI技术合成,请谨慎甄别

编辑于2025-06-28 扬州

投诉
#扬州买房攻略 #洋房测评 #共有产权房解析 #邗江生活圈 #户型改造指南
说点什么…