1/3
烟台大房子
关注

🎉飞龙绿城·颐和海岸曝光新图!海景美宅魅力难挡🏖️

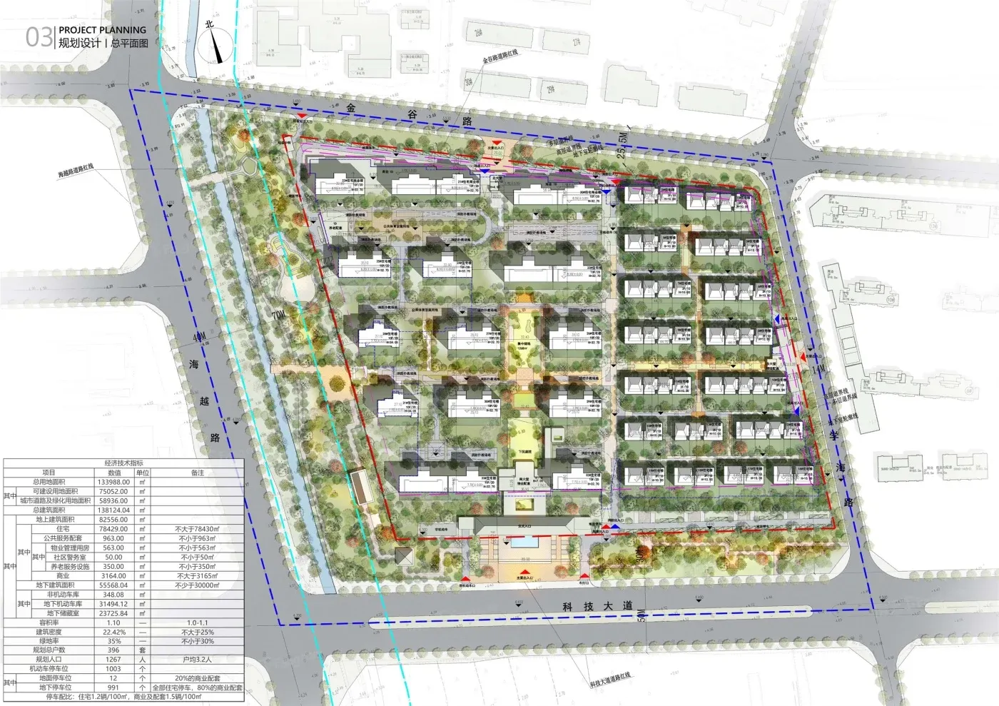
飞龙绿城·颐和海岸的最新图片已经曝光啦!📸此次公开的交通图、整体规划图以及规划效果图,为大家揭开了这个海景美宅的神秘面纱。位于海越路以东、科技大道以北的绝佳位置,结合低密度的居住环境,吸引了不少购房者的眼球。这些新图为大家展示了项目的整体布局与美景效果,让人仿佛已经置身于这个满足梦想的居所。🏡

- 项目特色鲜明:低密居所与景观居所结合,海景与水景地产完美融合,给你不一样的生活体验🌊🌳。

- 开发商背书:由烟台飞龙盛祥房地产有限公司开发,保证了项目的品质与诚信,值得信赖🏢。

- 独特海景魅力:作为海景地产,居住其中即可享受无敌海景,生活品质尽显🌅。

- 容积率仅为1.1,保证了住户的私密与舒适,居住环境更加宜人🏡。

- 多样化居住选择:项目提供特色别墅和花园洋房,满足不同家庭的居住需求🏠。

- 停车位充足:共有1003个停车位,为居住者提供便利的停车体验🚗。

这些信息是否让你心动呢?快来一起感受飞龙绿城·颐和海岸的无尽魅力吧!✨

2025-02-25 烟台

投诉
说点什么…