1/6
呜啦啦抱抱
关注

昆明路旁的第四代住宅:中国铁建·轨交·秦风雅颂,三环外值得冲吗?

三环外的“高得房率神盘”真能实现空间自由?作为从业20年的地产老炮,实测后发现:这里确实藏着年轻人首套房的解题思路!

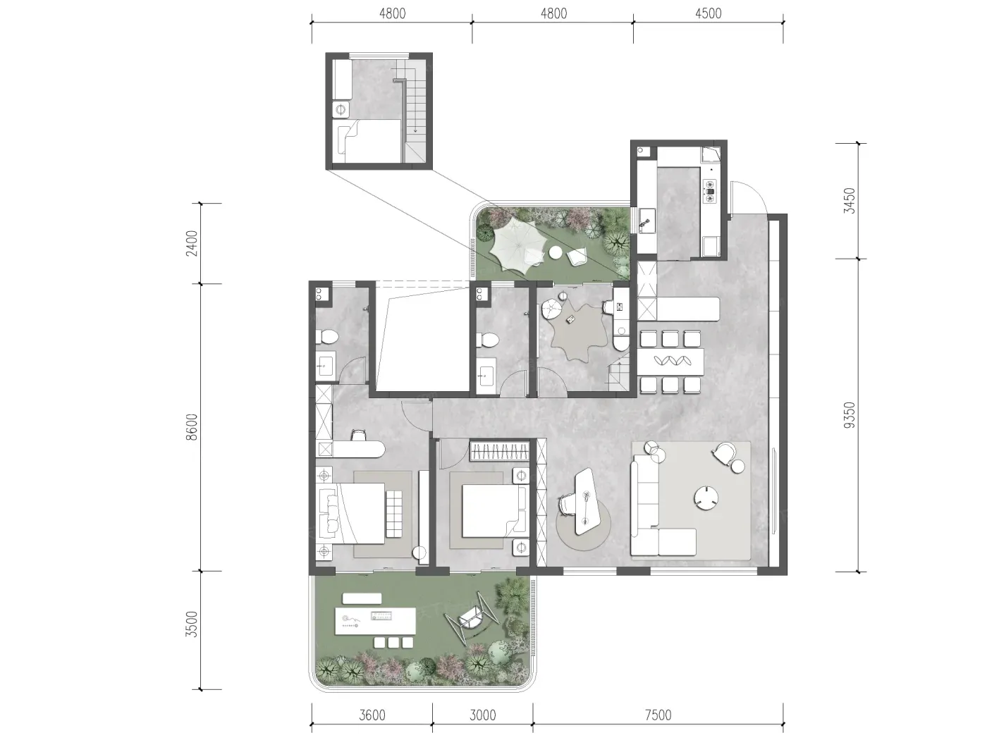
【空间利用率天花板】建面137㎡实得208㎡,南北露台全赠送,非承重墙设计让户型能自由“变形”。但要注意!项目处在沣东与丝路软件城交汇带,目前周边大型商业主要依赖西咸吾悦广场,更多配套还需时间兑现。

【双产业圈辐射力】对高新上班族确实友好,王寺站地铁590米+昆明路主干道,早高峰通勤实测25分钟到软件园。不过三环外的地理位置,让追求烟火气的家庭需要权衡——周边菜场、学校等生活配套成熟度,确实比不过主城成熟片区。

当老同学在县城买着150㎡“面子房”,西安新生代更懂:房子是生活的容器,但生活的价值从来不止于面积数字。这里有创新户型打破空间枷锁,有双地铁兑现成长预期,更有央企品质托底——但若你渴望即刻享受完善配套,建议给这个板块3年成长期。

该内容疑似使用AI技术合成,请谨慎甄别

编辑于2025-06-11 西安

投诉
#西安买房攻略 #地铁房测评 #西咸新区楼盘 #第四代住宅 #性价比神盘
说点什么…