1/6
花花花花花痴
关注

16700元/㎡得房率121%!西安这盘让我重新定义居住

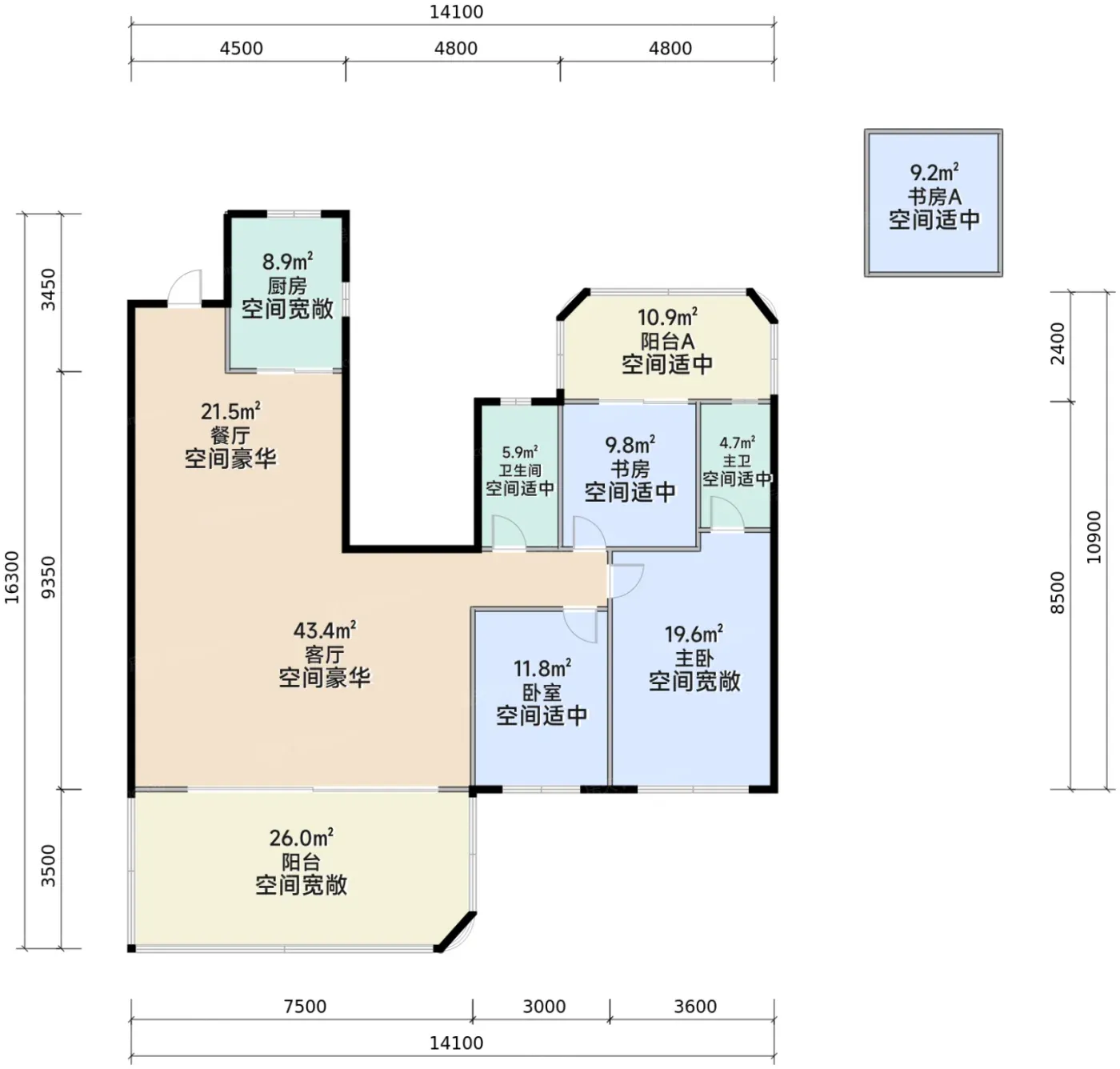
"得房率121%是什么体验?"刷到这条留言时,我的购房DNA动了。在中国铁建·轨交·秦风雅颂样板间,看到137㎡实得208㎡的户型,终于理解什么叫"花高层钱住大平层"。

三开间朝南的LDK一体化设计,让阳光铺满整个起居空间。重点是非承重墙可以随意拆除,能改出独立书房或儿童活动区。南北双露台设计简直戳中咖啡星人的心巴,但北方风沙大的季节可能需要勤打扫。

动静分区特别适合三代同堂:主卧套间与老人房保持7米距离,儿童房旁预留了家庭影院布线口。不过项目在绕城高速旁,低楼层可能有噪音困扰,建议选双层中空玻璃。

飘窗改造术在这里玩出花——主卧L型转角飘窗能改造成梳妆台+书桌组合,次卧飘窗直接延伸出1.8米榻榻米。但要注意西北朝向的次卧冬季可能稍冷,地暖费会略高。

当传统户型还在卷阳台尺寸,第四代住宅已经开启空间革命。不过提醒想改造的姐妹:露台封包要提前和物业确认,赠送面积部分可能影响二次转手评估价。

该内容疑似使用AI技术合成,请谨慎甄别

编辑于2025-06-07 西安

投诉
#西安新房测评 #第四代住宅 #空间改造术 #户型研究所 #沣东生活圈
说点什么…