1/6
最后一抹眼泪
关注

绿城·春鸣里|西安北跨C位,四代住宅竟能这么卷?

最近被问爆的楼盘——绿城·春鸣里,实探发现它真的不是普通改善盘!

■ 四代住宅新物种,对传统户型降维打击

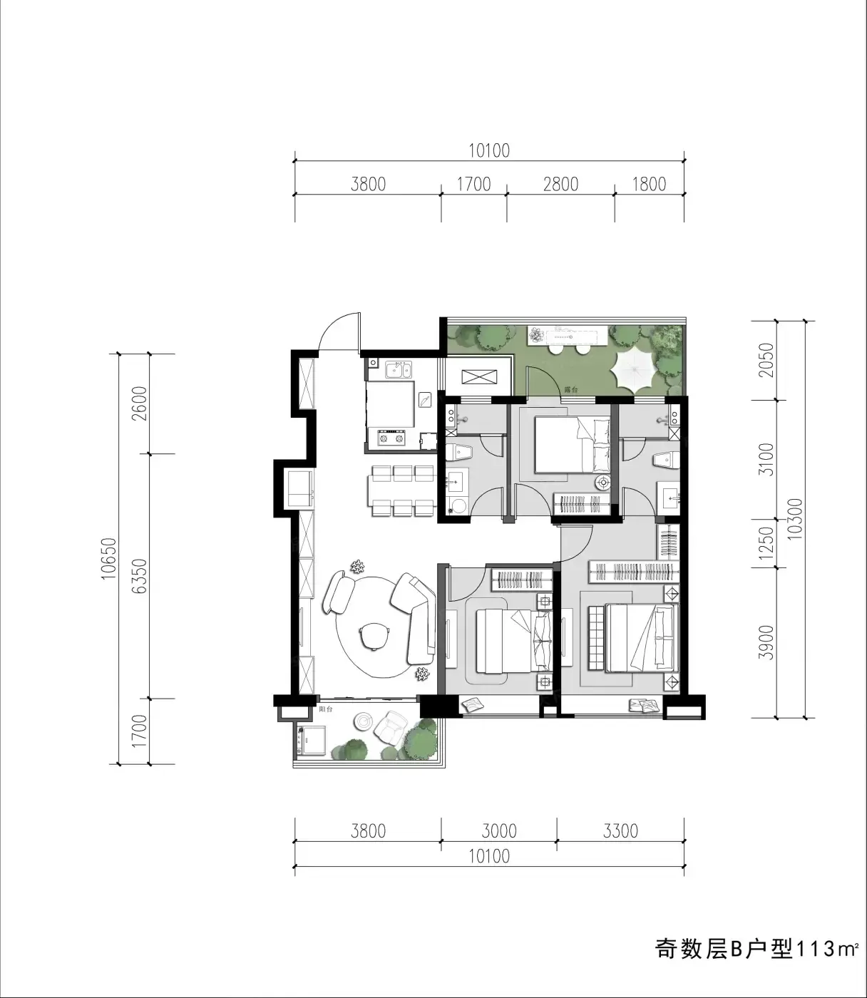
113㎡户型竟能做出10米露台!错层设计让每家都有立体花园,6米挑高直接把露台变成空中庭院。这届开发商太懂年轻人既要烟火气又要诗意的矛盾心理,在钢筋森林里种出垂直花园的操作,确实刷新了我对住宅产品的认知。

■ 三个反常识真相:

1️⃣「三环外≠配套荒」实测地铁14号线+2号线双轨交汇,13分钟飙到北客站。更绝的是经开五校直线距离800米,接送娃比下楼取快递还快。

2️⃣「生态牌≠高溢价」均价1.6w/㎡带精装,比隔壁二手倒挂3000+。高铁新城现在就像10年前的高新三期,城市界面肉眼可见在升级。

3️⃣「露台≠智商税」实测露台赠送率超30%,关键是真能种树!绿城的垂直绿化系统接入物业维护,懒人也能拥有治愈系花园。

当然要提醒:

📍北跨发展需要时间兑现,现阶段大型商业还靠熙地港

📍错层设计对施工精度要求极高,建议重点考察实体楼细节

📍143㎡户型得房率逆天,但部分房间需要后期改造

当你在主城老破小和远郊大平层之间纠结时,这种「不离尘不离城」的第四代住宅,或许就是当代城市夹心层的解题新思路。你想要的烟火与诗意,本就该兼得。

该内容疑似使用AI技术合成,请谨慎甄别

编辑于2025-06-02 西安

投诉
#西安买房攻略 #四代住宅设计 #北跨发展 #改善型住房 #绿城春鸣里
说点什么…