1/6
云栖藏星录
关注

360㎡大平层值吗?3个真相让人清醒

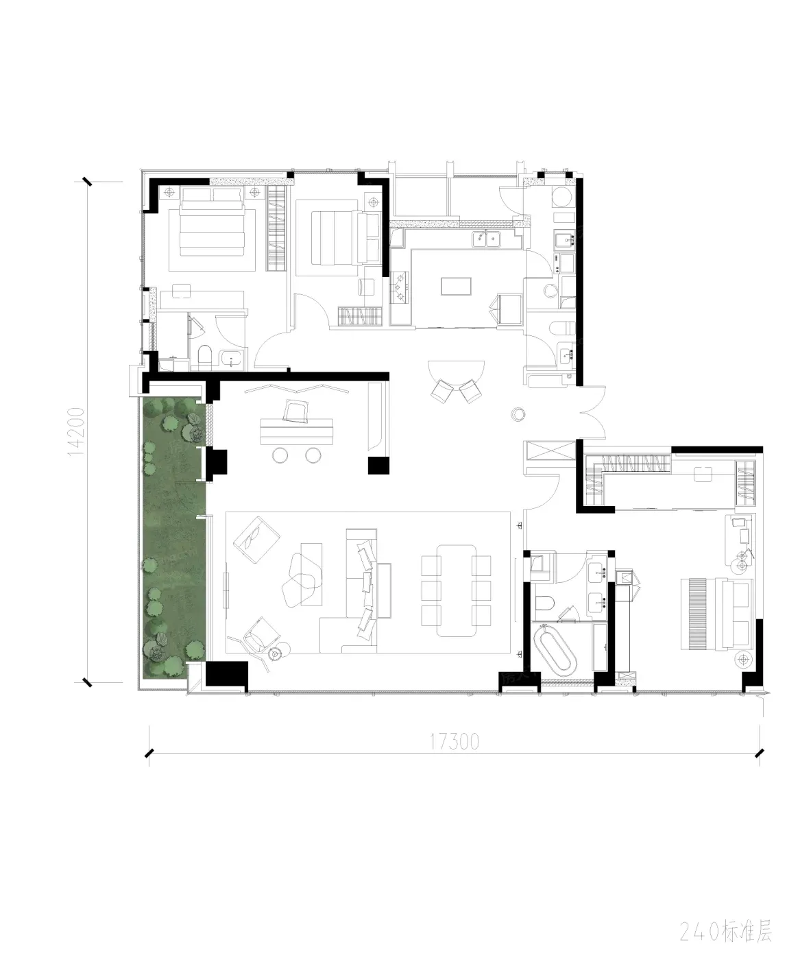
花1000万买精装大平层,真的不用拆吗?上周陪设计师朋友看房,在样板间发现了让人纠结的秘密。240㎡户型飘窗被做成固定柜体,380㎡主卧套间预留的衣帽间只有2.1米进深。朋友当场掏出卷尺:「这些精装交付标准,大概率要拆!」

社区北侧两栋17层小高,南边三栋26层大高。实测下午三点,小高6层以下阳光被南侧楼体遮挡。朋友指着沙盘摇头:「这种高低配社区,幼儿园和健身场地可能只有迷你版。」

更戏剧的是厨房配置,嘉格纳六件套配岩板台面,看着高级但朋友算过账:「380㎡户型厨房才8.2㎡,操作台比我家140㎡的还短40公分。大平层业主谁家不摆双开门冰箱?这个空间规划太保守。」

是选择国企开发的安全感,还是接受精装房的将就?是看中地铁沿线的便利,还是忍受高低配社区的局促?是享受低密社区的静谧,还是面对小体量配套的妥协?每个「你」都要在户型图里找答案。

该内容疑似使用AI技术合成,请谨慎甄别

编辑于2025-05-31 西安

投诉
#西安买房攻略 #大平层避坑指南 #精装房真相 #户型设计解析 #改善住宅测评
说点什么…