1/5
中建四局资产管理
关注

央企巨献:

标题:自家南向写字楼出租✨创业青年看过来!

正文:

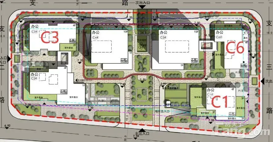
这套房子是我家自己的产业🏢,位于金华路和科苑路交叉口的青年创业园,特别适合初创团队办公使用~

【房子基本情况】

▶️ 100平米的毛坯空间,就像一张白纸任你发挥创意

▶️ 南向采光超级棒☀️ 从早到晚都亮堂堂的

▶️ 位于1楼,搬运设备、接待客户都特别方便

▶️ 季付租金只要30万/季(比同地段便宜近15%!)

【为什么选我家】

1️⃣ 园区里都是创业公司,氛围超级好,经常能碰到志同道合的伙伴

2️⃣ 周边餐饮配套很齐全,步行5分钟就有7-11和咖啡厅

3️⃣ 交通超级便利,出门就是公交站,开车5分钟上高架

【给租客的小贴士】

💡 毛坯房可以根据需要自由改造

💡 随时都能入驻,不用排队等

💡 我们老业主了,物业那边都能说上话

房子现在空着也是空着,真心想找个靠谱的创业团队来用。价格可以小刀🔪,关键是要爱惜房子~有兴趣的欢迎随时来看房!

#写字楼出租 #创业办公室 #业主直租 #青年创业园

编辑于17小时前 芜湖

投诉
说点什么…