1/5
瑟银兄弟会
关注

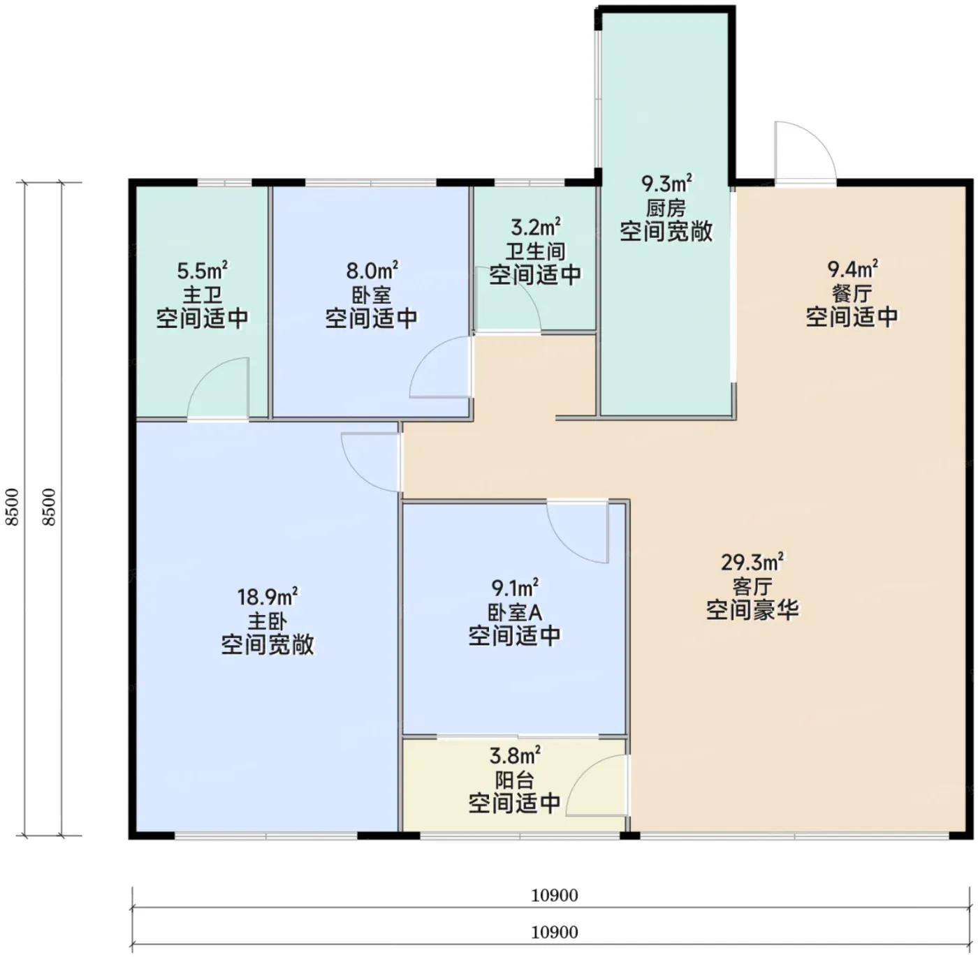
105㎡偷出25㎡!这户型把公摊吃回去了

"这得房率太逆天了!"朋友盯着户型图突然蹦出这句。华侨城·天荟的105㎡户型实测套内相当于市面130㎡,秘诀就在那7.8米双联阳台和全屋飘窗——开发商把公摊面积用赠送面积补回来了!

新生代家庭注意看三点:①U型厨房塞得下双开门冰箱,边做饭边看娃动线才合理;②主卧L型飘窗能改咖啡角+书桌,比常规户型多出3㎡功能空间;③动静分区把老人房和儿童房隔开,深夜加班不怕吵醒家人。

但要注意4.48容积率意味着楼间距较窄,低楼层采光会受影响。就像老家住200㎡的同学,实际使用面积可能还没这105㎡能装。买房就是买生活容器,真正能装下热爱的空间才值得买单。

该内容疑似使用AI技术合成,请谨慎甄别

编辑于2025-06-05 武汉

投诉
#第四代住宅 #户型设计 #武汉买房 #空间改造 #生活美学
说点什么…