1/6
如影随形4
关注

汉口核心区买改善房,真能兼顾品质和烟火气吗?|福星华府·琛境测评

在汉口二环边买套精装四房,下楼就能送娃读省示范,这种生活究竟香不香?今天带你看懂这个被老武汉人私藏的烟火气社区。

真正的好房子,是能在精致社区里找到市井暖意。福星华府·琛境给新生代家庭示范了三点:

1. 出则繁华入则静的秘密:站在阳台就能看见常青路高架川流不息,但楼下新湾三路菜场的叫卖声更真实。步行250米到长港路地铁站,却总有人更爱穿过红领巾学校门口的梧桐道慢慢走回家。

2. 学区房不该是牢笼:省示范红领巾学校确实就在马路对面,但更难得的是转角就能遇见泛悦mall的电影院和季佳的生鲜超市,这种成长环境才叫立体。

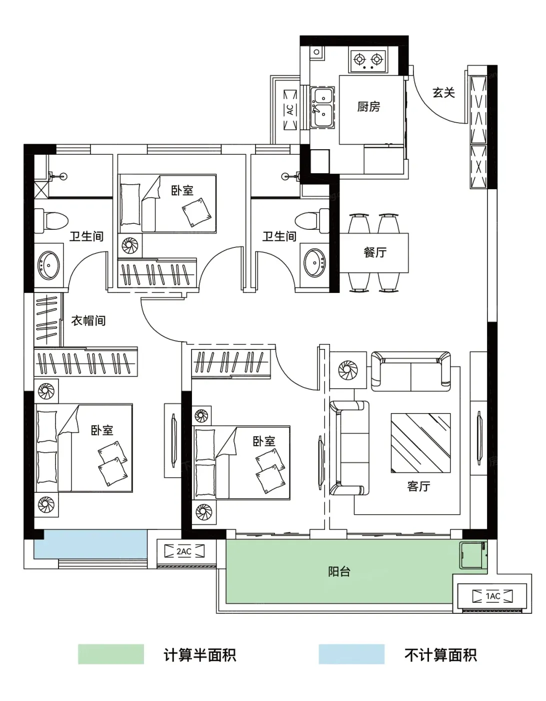
3. 户型通透的秘密武器:107㎡做三房还带双阳台,飘窗改咖啡角正对口袋公园。不过4.74的容积率提醒你,想看满眼绿意还得去两站路外的园博园。

当然要提醒你注意:惠之美物业的口碑就像小区门口的热干面店,有人夸地道有人说油太厚。房子终究是装生活的容器,这里的烟火气够不够浓,建议你傍晚去新湾路菜场闻闻小龙虾香气再决定。

该内容疑似使用AI技术合成,请谨慎甄别

编辑于2025-05-30 武汉

投诉
#武汉买房攻略 #汉口核心区 #学区房测评 #改善住宅 #楼盘优缺点分析
说点什么…