1/5
蓝色大门1
关注

汉口新物种!这户型让我当场闭嘴了

上周被朋友拉去看房,本来想当个专业挑刺王,结果看到户型图直接傻眼!

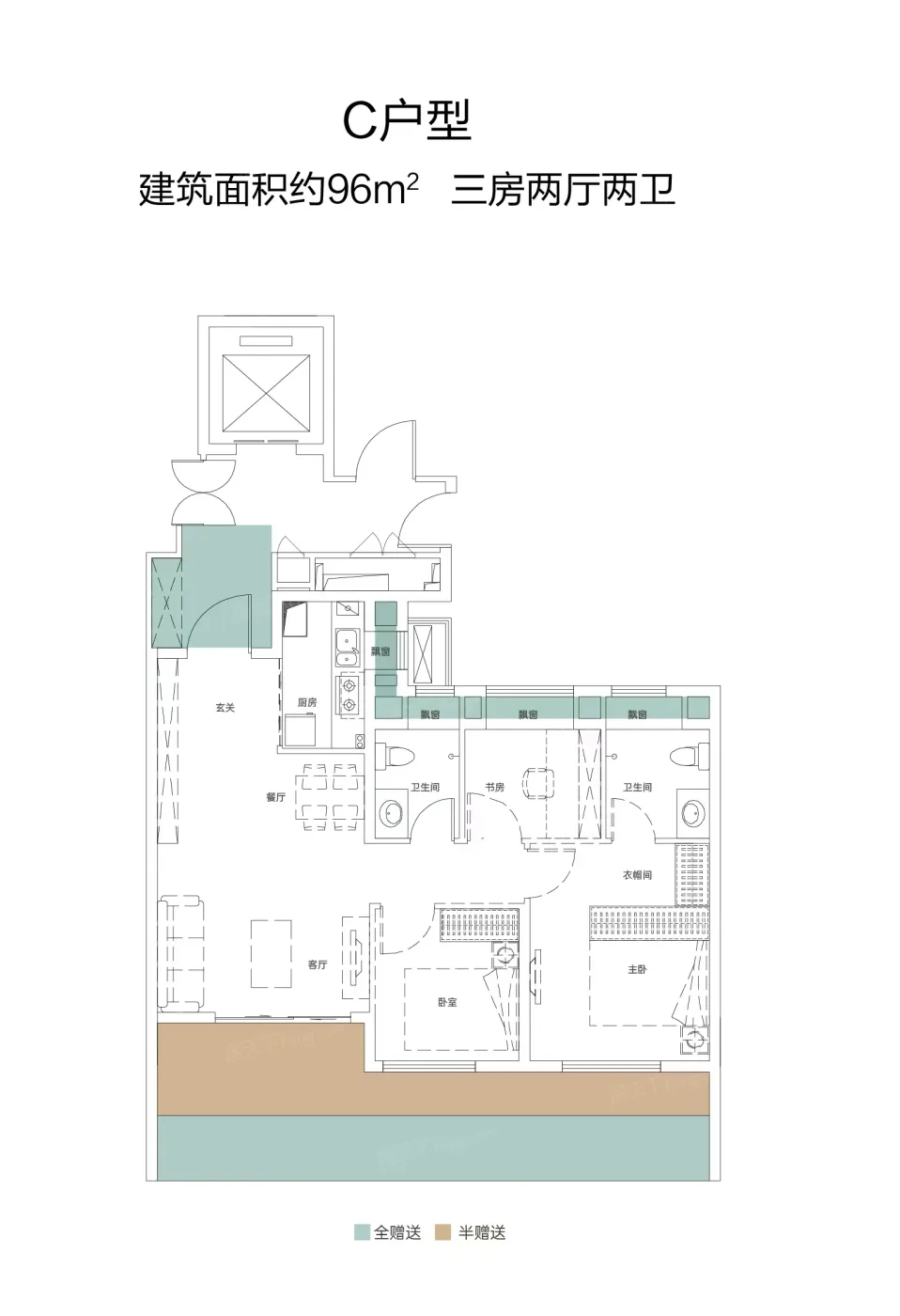
这个叫恺德雲麓的盘,直接把"四代住宅"玩出花。5.6米大横厅像电影幕布一样展开,LDKG一体化设计让客厅、餐厅、厨房、阳台全打通。最绝的是南北双阳台还带双花池,站在样板间里感觉像在逛空中花园!

朋友看我愣在原地,得意地补刀:"得房率101%哦,电梯直接入户,你家鞋柜都能放走廊"。我表面保持冷静,内心疯狂OS:这空间利用率简直犯规!34㎡的拓展面积,相当于白送个小房间啊。

虽然嘴上还在挑刺"离地铁站600多米有点远",身体却很诚实地开始算首付了。毕竟武汉外校9月就开学,凯德广场就在隔壁,这配套组合拳打得确实漂亮。

所以问题来了,这种神仙户型到底该配什么装修风格?求建议!

该内容疑似使用AI技术合成,请谨慎甄别

编辑于2025-03-31 武汉

投诉
#武汉新房 #四代住宅 #户型设计 #品质生活 #空间魔法
说点什么…