1/2
张龙
关注

能建青誉府楼盘解析

能建青誉府

规划有11栋楼,分两个地块。

C地块的1至3号楼为32层、5号楼25层、6至8号楼为33层、9号楼26层;

B地块的10号楼31层、11号楼18层、12号楼27/31层。

首开5号楼,北向是园林景观,南向是消防站,没有遮挡,视野较好。

5号楼25层高,一个单元,三梯六户,中间为100平,两边为116平,优化后得房率约88%。

1️⃣地段

项目位于青山区地铁5号线建设二路旁,与二环线直线距离约1.5公里,属于2.2环的青山建二商圈,绝对地段非常核心,同时辐射武昌核心和汉口核心。

2️⃣地铁

距离5号线建设二路站150米,距离12号线科普公园约800米。

3️⃣自驾

出门即是和平大道、建设一路和建设二路,仅一个红绿灯就能通过和平大道上二环,通达武昌中心、汉口、汉阳。

东西走向有建设二路、建设三路、工业路等。

南北走向有临江大道、和平大道、友谊大道三条主干道,这三条大道都能贯穿大武昌南北,快速到达武昌核心。

4️⃣商业

建二商圈是青山第一商圈,除了武商城市奥莱,项目正北面的吾行里也不有少商业,东边的大华锦绣时代也有一条还未开街的商业街。

5️⃣书包

与任家路中学仅一墙之隔,小+初+大学名校包围,公办对口可能性极大,也是武汉目前对口第一梯队最为靠谱的新盘!

能建青誉府是在52、53街坊上拿地新建,在2023年的划片中,52、53街坊就是对口的吉林街小学和任家路中学。不管是吉林街小学,还是任家路中学,都是青山的第一梯队。

6️⃣产品力

产品细节上,类公建化外立面、“府系”园林、精装大堂、首层架空、星空顶等等,尤其在户型上,仅约100、116、135平三个面积段,是市场上流通性最强的面积段,以及优化后约88%的超高得房率!

7️⃣户型解读

100平,三室两厅两卫,此户型位于5号楼中间两户,户型方正,动静分区;三开间朝南,9.8米的超长南向横宽,采光非常好;客厅阳台连通次卧阳台,4个飘窗全赠送,优化面积非常多。刚改入门级产品,预计门槛比较亲民!

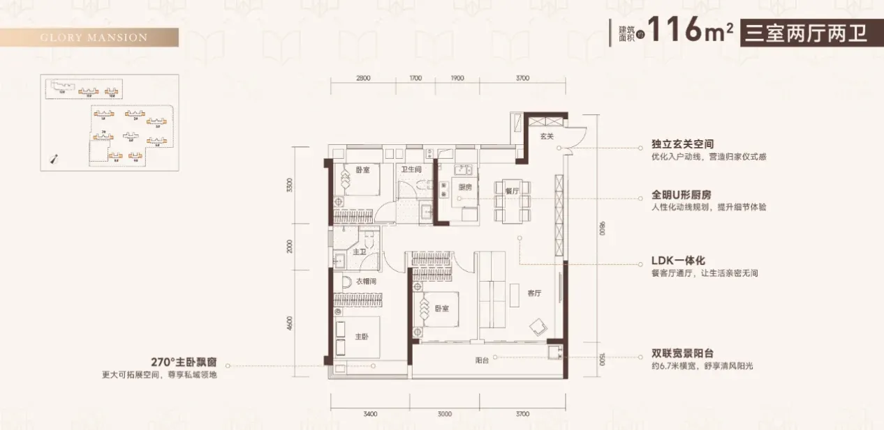
116平,三室两厅两卫,此户型位于5号楼两端,方方正正,南北通透,舒适度非常高。门口带玄关,保证隐私;U型厨房,实用性强,厨房与餐客厅一体,活动空间大;主卧套间设计,还有一个270度拐角飘窗,采光更好。在很多改善楼盘,这个面积段是中间户,但在这里是边户,性价比更高!

2025-02-12 武汉

投诉
#我和我的楼盘 #户型解析 #周边配套
说点什么…