1/5
米兰小小皮
关注

天价老破小VS和平新贵|住进信达格调美古花园真的值吗?

花550万买套内环75㎡,到底是交智商税还是抢占教育C位?在和平区这个转学政策要提前三年买房的地方,信达格调美古花园的稀缺性确实诱人。但真正住进去究竟什么体验?

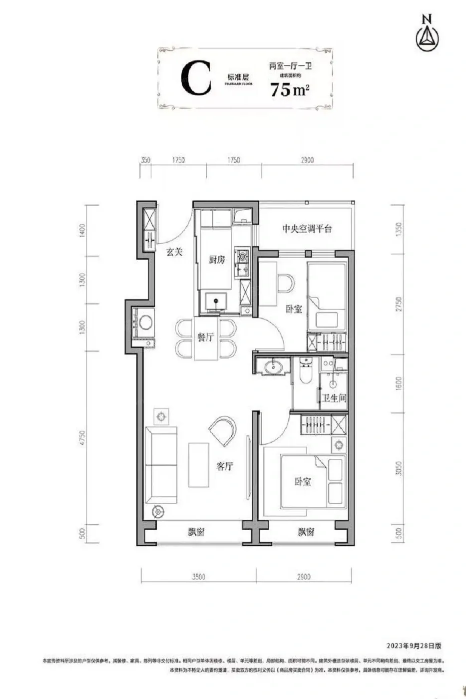
推开样板间大门,开发商宣称的"飘窗咖啡角改造术"确实戳中审美点——3米长的L型飘窗台摆上手冲器具,配合着175㎡四居室动静分区的设计,比老破小憋屈的厨房改造舒服太多。可朋友吐槽起来更真实:"在和平路上班步行10分钟就能到单位,但3.03的容积率让我总有种住在蜂巢里的错觉。"

对比周边动辄房龄30年的二手房,新风系统和地下车库确实能提升生活品质,但社区小花园里挤满推婴儿车的家长时,你会突然意识到:这里每扇窗户背后都藏着本五年模拟三年高考。教育配套的王者光环,注定让这里成为家长圈的硬通货。

房子是容器,生活才是真谛。当你在咖啡香里看着孩子跑过全屋地暖的木地板时,那些关于容积率的纠结,或许都会被窗外的五大道梧桐治愈。

该内容疑似使用AI技术合成,请谨慎甄别

编辑于2025-08-16 天津

投诉
#天津买房攻略 #和平区学区房 #品质住宅测评 #内环生活圈 #新生代家庭选择
说点什么…