1/7
bullet2011
关注

中国铁建花语尚东测评:预算有限如何拿下地铁现房?

预算有限又想住进地铁房?这份东丽金钟街新盘测评看完再决定!中国铁建花语尚东最颠覆认知的三大真相:

1️⃣现房+地铁这对王炸组合,居然出现在中环线!74㎡小户型总价仅90万起,比同区域竞品便宜15%,隔壁中介小哥都说这价格实在。但要注意2026年才交房,急着入住的要盘算好时间账。

2️⃣地铁6号线453米真实距离测评:从C口步行实测6分23秒,暴雨天可全程走地下商业通道,实测通勤比想象中方便。但商业配套目前主要依赖1.5公里外的大毕庄市场,日常买菜得备辆电动车。

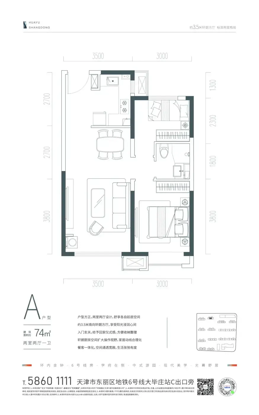
3️⃣户型藏着"反向操作":89㎡三房竟比84㎡两房多出5㎡!主卧3.6米开间搭配L型飘窗,实测放完1.8米大床还能摆下梳妆台。但厨房操作台仅4.2米,爱做饭的家庭建议选125㎡洋房款。

当现房遇上真地铁,当刚需价碰上改善质,这种错位打法你看懂了吗?是急着入住的地铁族?是精打细算的持家派?还是追求空间感的品质控?带着你的生活动线来看房才不会踩坑。

该内容疑似使用AI技术合成,请谨慎甄别

编辑于2025-07-14 天津

投诉
#天津新房测评 #地铁房优选 #现房推荐 #东丽区房产 #刚需购房指南
说点什么…