1/6
上国的团
关注

76000/㎡值不值?和平芯教育盘的三重真相曝光

天津楼市最近流行个段子:和平区的房票要么交给教育,要么交给情怀。但真实情况是,当美古花园这类新盘入场,买房逻辑正在重构。

【真香定律】教育配套拿到双满分的新盘,天津仅此一家。27年准现房入学通道+万全小学加持,家长们别急着买老破小,这里提前3年锁定学位。135㎡户型做成三面宽+独立家政间,这在和平区小高产品里属于超纲操作。

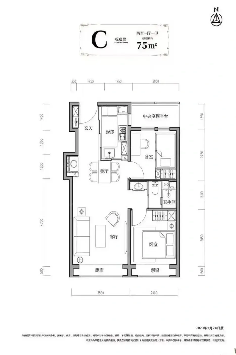
【价值迷思】单价7.6万看似溢价?周边二手房拆间跌破90万是事实,但别忽视产品代差。3.03容积率的玻璃幕墙小高层,对比同地段30年房龄的老楼,相当于iPhone15和诺基亚的差距。新房节限量放出的75㎡两居,藏着和平区最后的上车机会。

【硬伤预警】2026年底交房周期劝退急需落户的家庭,地铁站最近的和平路站步行实测9分钟。预算千万的买家注意:主力户型厨房仅6.8㎡,想做开放式需敲除非承重墙。

当你为地段心动,为教育妥协,为品质买单时,请记住:没有完美的房子,只有恰好匹配需求的选择。

该内容疑似使用AI技术合成,请谨慎甄别

编辑于2025-06-23 天津

投诉
#天津买房攻略 #和平区新盘评测 #教育资源房 #改善型住房 #楼市真相
说点什么…