1/5
古铜色月光
关注

建投·新光之城|天津武清低密别墅,5500元/㎡买四代住宅值吗

听说最近天津楼市只有两种房子:带院子的,和没灵魂的水泥盒子。上周陪闺蜜看建投·新光之城,她家三代人从市区挤到郊区,就想找套能种花的房子。

主卧飘窗改咖啡角,次卧转角做亲子阅读角...当户型师在沙盘前画出生活动线时,闺蜜突然喊停:「等等!这项目在京津高速边上会不会吵?」销售倒挺实在:「我们确实不在繁华区,但0.78容积率+40%绿化,您看窗外这排银杏林就是隔音带。」

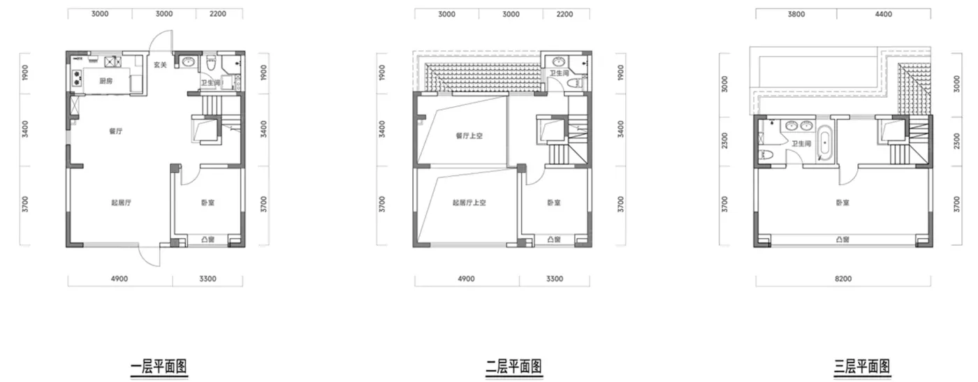
作为滨海首个四代住宅,新光之城把空间玩出花:79㎡小户型能做双卫+衣帽间,160㎡户型自带星空露台。不过要提醒的是,周边商业配套还在建设中,适合有车家庭。闺蜜最终选了带下沉庭院的边户,她说:「在市区买的是房子,在这买的是生活容器。」

当你在钢筋森林里找栖息地时,或许也需要这样的辩证思维:要烟火气还是鸟鸣声?要便捷商圈还是推窗见绿?生活本无标准答案,就像建投的飘窗既能当花架也能变书桌,全看你怎么定义「家」。

该内容疑似使用AI技术合成,请谨慎甄别

编辑于2025-05-31 天津

投诉
#天津别墅 #低密生活 #四代住宅 #户型设计 #改善置业
说点什么…