1/6
玖柒叁壹
关注

天津梅江南:格调初晴·墅告诉你什么叫真·低密生活

最近总听业内人调侃:现在敢把容积率印在沙盘上的楼盘,比会所里的真话还稀缺。格调初晴·墅0.56的容积率,直接掀了改善市场的底牌。

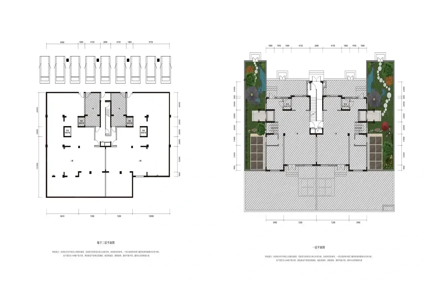
见过太多"伪低密"项目,把18层小高当洋房卖。这里的联排别墅区,户户带庭院,树冠高度超过二楼阳台,这种垂直绿化尺度在天津新房市场近乎绝版。更狠的是,项目与梅江公园直线距离300米,相当于把市政公园当成了社区前厅。

但必须说,850万/套的起步价筛掉了刚改客群。129㎡户型做三居略显局促,反而是200㎡以上户型更能体现空间张力。项目西侧规划中的商业配套落地前,买菜还得靠3公里外的永旺。

当你厌倦了塔楼里开窗见邻居的尴尬,当你想让孩子在树影斑驳的庭院里长大,这种用40%绿化织就的生活滤镜,或许就是当代城市隐士的解药。

该内容疑似使用AI技术合成,请谨慎甄别

编辑于2025-05-30 天津

投诉
#城市后花园 #低密生活 #改善住宅 #园林社区 #品质居住
说点什么…