1/6
whxuw12908
关注

晋阳湖旁17000/m²新盘,115㎡起值不值?

"这价格,刚需够不着!"刷到均价17000的汾河湾D区时,我的奶茶瞬间不甜了。作为晋阳湖板块的装修盘,实测优缺点太明显——

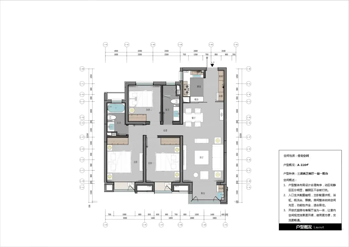
优势区:①双公园夹击,下楼就是汾河+晋阳湖绿道,晨跑党狂喜;②全屋精装带壁纸,连厨房凉霸都配齐;③双钥匙学区房,配套评分拉满到10分。

但坑点同样醒目:①115㎡起步的户型,总价149w起,门槛直逼改善;②2.98容积率让楼间距略局促,低层采光得仔细挑;③商业配套需要开车5公里到北美新天地,日常买菜靠社区底商。

实测发现:主卧飘窗足足有1.8米宽,改造成咖啡角秒变网红打卡位;餐厨动线却存在硬伤——备菜区到灶台要走3步,做饭高峰期容易打架。

在遍地改善盘的晋阳湖板块,这个盘就像班里的偏科生:环境配置能拿满分,但面积门槛注定只能服务特定群体。当邻居们都在讨论叠拼别墅时,你家218㎡的大平层反而成了入门款——这样的生活圈层,亦是当代中产的真实镜像。

该内容疑似使用AI技术合成,请谨慎甄别

编辑于2025-12-14 太原

投诉
#阳光汾河湾D区 #晋阳湖板块 #装修交付 #改善住宅 #太原新房 #晋源区生活圈
说点什么…