1/4
马红霞
关注
这才是我们理想中的家
这才是我们理想中的家
2025-07-20 太原
投诉
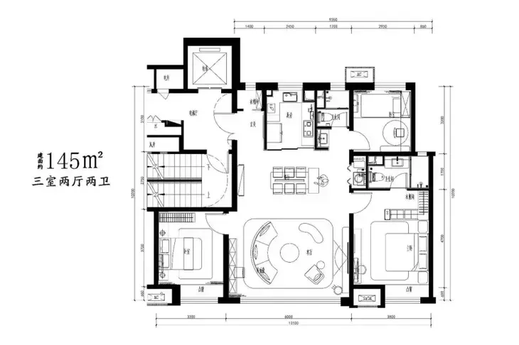
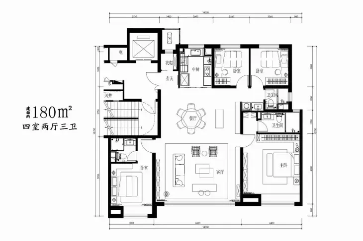
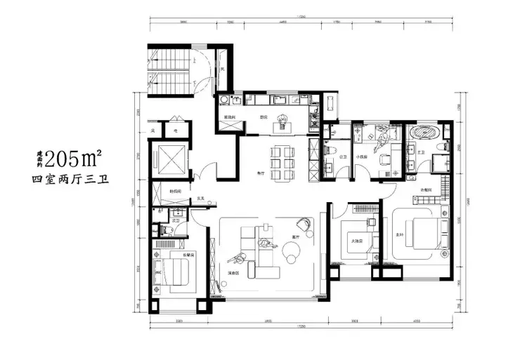
#楼盘介绍
说点什么…
点赞
评论