1/5
小米那年
关注

太原这个新盘,真能装下你的生活理想吗?

当教育配套成为买房第一考量,富力金禧城能给你多少安全感?邻居张姐上个月刚把老城区的房子卖了,带着孩子住进租来的学区房。看房时她总念叨:“教育配套得是能白纸黑字写进合同的才算数。”

这盘最硬核的底气确实在教育——九一小学东中环校区(山西师大附属学校)划片政策持续到2025年。非太原户籍的朋友要留意,这里能解决“暂住证+租房证明”的入学难题。但4.05的高容积率让小区像装在罐头里的糖果,儿童活动空间得靠楼间距抠出来。

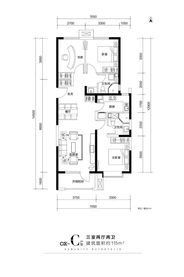
张姐最终定了89㎡三居,代价是得等到2025年底交房。她家孩子现在幼儿园中班,正好赶上开学节点。可飘窗咖啡角改造术在这行不通——44㎡户型连转身都局促,更适合单身或顶客族。想给学区房加生活情调?先做好空间断舍离的心理准备。

你的安全感,是孩子能在家门口上学,是深夜能买到退烧药,是地铁能直达工作单位。而生活仪式感,可能要向学区优势妥协0.5㎡。

该内容疑似使用AI技术合成,请谨慎甄别

编辑于2025-07-06 太原

投诉
#太原买房攻略 #教育楼盘测评 #新生代家庭 #品质生活 #户型分析
说点什么…