王海龙
关注
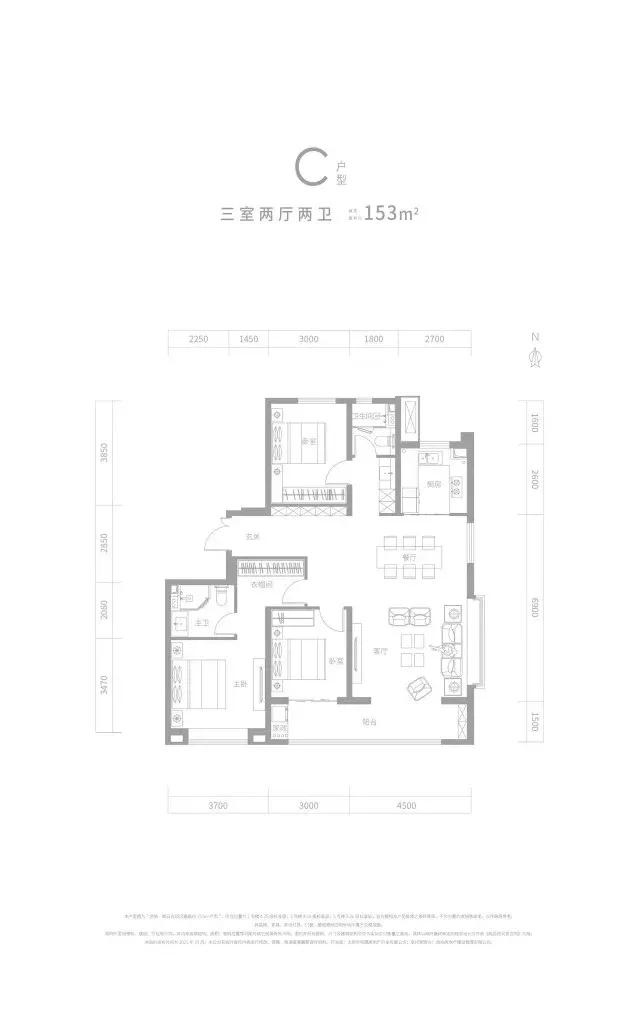
金地卿云台153最后一套好房源
2025-06-18 太原
投诉
说点什么…
点赞
评论