1/6
此号注销1
关注

太原华侨城天鹅堡测评:西中环边藏着的新晋教育顶流

"你家娃明年要上小学?"闺蜜深夜发来的灵魂拷问,让我连夜打开了华侨城天鹅堡的户型图。

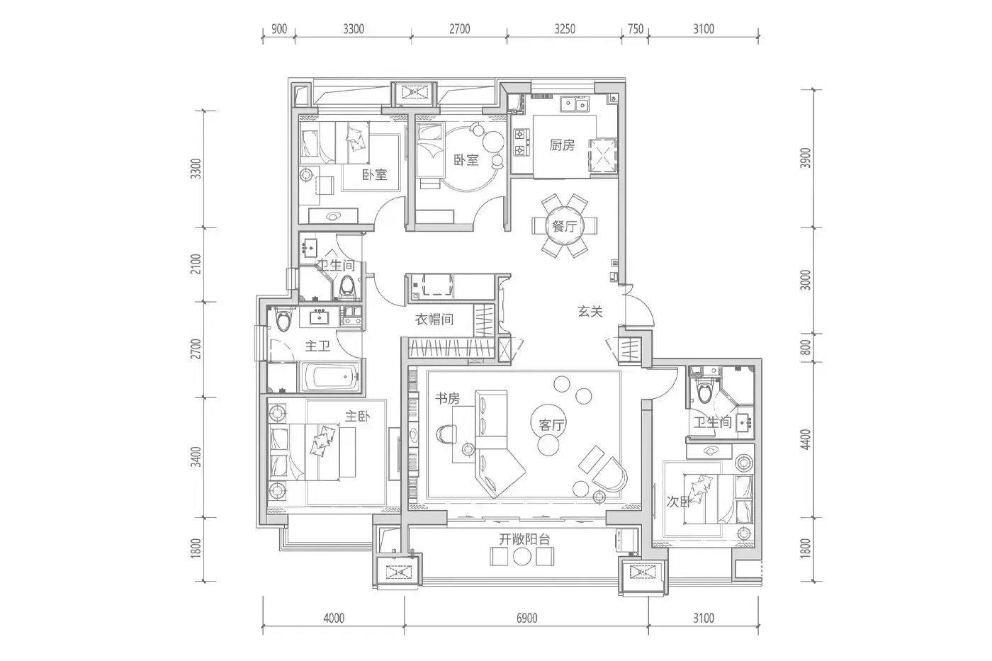
上个月帮表姐踩盘时,这个项目让我印象颇深。二期升级后的185㎡四居室,玄关柜竟然能塞下30双鞋!更绝的是阳台飘窗预留了家政收纳区,扫地机器人和工具箱都能藏得妥妥的。不过说实话,二期均价涨到1.35万确实让人肉疼,但看到实景园林里那些20年树龄的银杏树,突然觉得值回票价。

项目北侧的教育矩阵才是重头戏。新道街小学的早读声都能飘进卧室,隔壁山大附中万柏林校区今年中考升学率冲到了全市前三。现场遇到的老业主王姐说,她家娃从幼儿园到初中都没出过小区1公里范围。现在二期要建的业主会所,听说要搞室内恒温泳池和瑜伽馆。

要说缺点,目前地铁3号线还在规划中,去万象城得开15分钟车。不过门口在建的2.2万方商业体倒是解馋,星巴克和盒马鲜生已经确定入驻。开发商把社区卫生服务中心直接建在小区里,家里老人量血压倒是方便了。

你要的烟火气,这里有下元商圈的夜市摊;你要的诗意栖居,西山万亩生态园的樱花雨正在候场;你要的成长轨迹,从幼儿园到中学的教育链完整得让人安心。

该内容疑似使用AI技术合成,请谨慎甄别

编辑于2025-06-05 太原

投诉
#太原学区房测评 #西中环买房指南 #华侨城天鹅堡实探 #品质生活研究所 #教育配套天花板
说点什么…