1/5
走了就不回来
关注

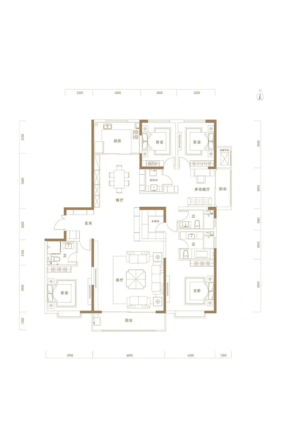
光信·晋阳嘉园二期:200㎡户型真能装下三代人的体面?

买大平层就是铺张浪费?实地看完这个国企盘的户型设计,我发现了新生代家庭的隐藏需求!作为专注研究户型与生活关联性的野生观察家,这次在光信·晋阳嘉园二期发现了三个反常识设计:

1️⃣ "会呼吸"的动静分区:实测121㎡户型竟用L型动线实现三代同堂互不干扰。老人房与儿童活动区形成静区闭环,年轻人加班到深夜回家洗漱,再也不会吵醒熟睡的父母。

2️⃣ 飘窗变形计:南向7.2米飘窗被设计成可拆卸模块。见过改造成咖啡角的,但能秒变临时书房+儿童涂鸦墙的创意,在太原还是头回见。

3️⃣ 阳台收纳玄机:开发商预留的隐藏式储物柜深度达80cm,实测能塞下折叠婴儿车+露营装备+滑雪板,彻底治愈中产家庭的"装备焦虑症"。

当然也有需注意的细节:部分边户244㎡户型存在西晒问题,建议选装电动遮阳帘;低密社区虽好,但北区离办公楼仅50米,建议优先选南区楼栋。

当你在纠结该买精装小户型还是毛坯大平层时,这个盘用3.15米层高+全屋预埋管线给出了新解法。毕竟对于真正追求品质生活的人来说,空间自由才是终极奢侈。

该内容疑似使用AI技术合成,请谨慎甄别

编辑于2025-05-30 太原

投诉
#太原买房攻略 #改善住宅测评 #户型设计解析 #晋阳街商圈 #低密社区
说点什么…