1/5
yilianjiekou
关注

1.1万/㎡起的改善盘,32套二手房成交背后藏着什么秘密?

朋友小北最近在龙城大街东延看房,从户型图到样板间跑了三趟,最后在签约前突然踩了刹车。这个号称「低密社区天花板」的楼盘,到底藏着哪些生活真相?

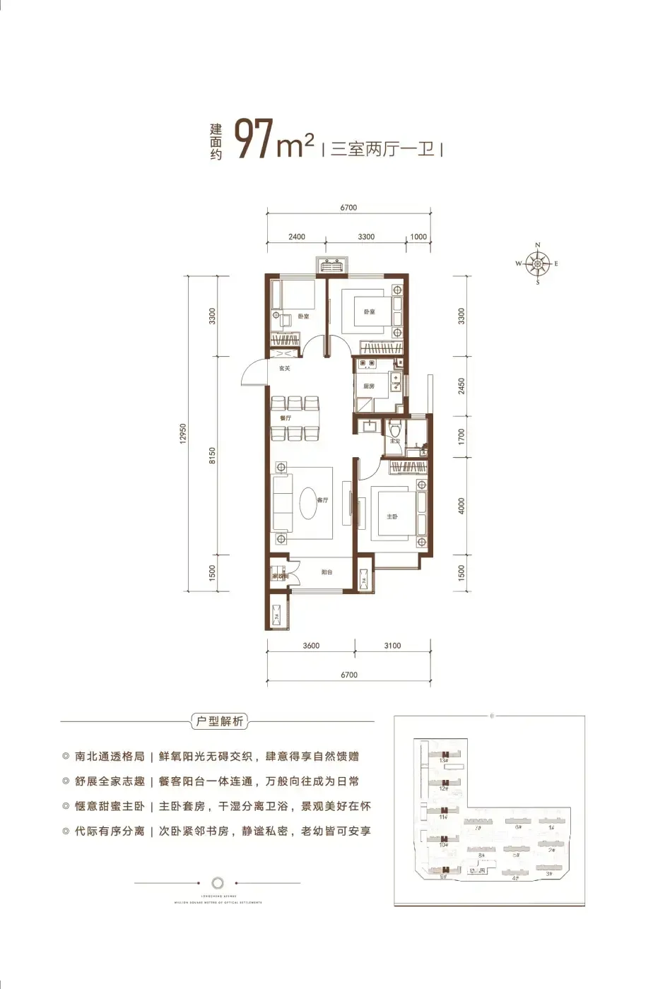
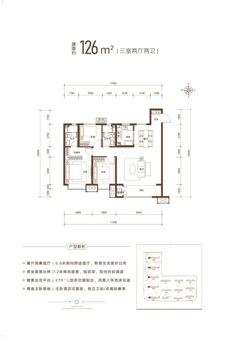
社区规划确实挺能打:2.0容积率搭配35%绿化率,97㎡三居室硬是挤出双卫设计。但实测发现,龙城大街东延目前公交线路只有2条,最近的商超要步行1.2公里。二手房市场倒是热闹,32套成交记录背后,其实是周边产业园年轻家庭在托底。

要说最戳中改善群体的,还得是央企开发的底气。2025年交房虽晚,但阳台半赠送和飘窗全赠送的设计,确实让得房率比周边竞品高5%。不过要注意,西峰村城改地块还在施工,未来三年可能要习惯工地交响曲。

如果你也在寻找一个成长型社区,这种优缺点都摆在明面上的楼盘,或许比完美人设更值得考虑。毕竟真实的居住体验,从来都是与城市发展同频的漫长旅程。

该内容疑似使用AI技术合成,请谨慎甄别

编辑于2025-05-26 太原

投诉
#太原买房攻略 #楼盘测评 #品质生活 #户型解析 #二手房观察
说点什么…