1/2
原原说房
关注

将建400套安置房!太原这处城中村改造新动态

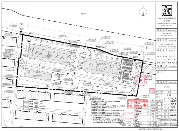
4月30日,太原市行政审批服务管理局发布关于新建下庄回迁安置房城中村改造工程项目建设工程规划许可证的公告。

根据公告,新建下庄回迁安置房城中村改造工程项目位于万柏林区上庄街南侧,西机路西侧,由太原市柏林宝地建设开发有限公司建设。

此次,获批项目包括 1 号楼、2 号楼、地库、换热站和大门。其中1 号楼建筑面积 29300.39 平方米,共 26 层,高度 77.54 米;2 号楼建筑面积 25405.67 平方米,共 26 层,高度 78.85 米。

根据此前公布的经济技术指标,新建下庄回迁安置房总建筑面积68858.85㎡,容积率3.6,绿化率25%,共规划建设2栋楼,安置户数400户。

2025-05-07 太原

投诉
#新房探盘 #施工进度 #楼市政策 #热门板块 #城市规划
说点什么…