1/4
原原说房
关注

投资额近50亿!规划户数2712户 太原这处城改安置项目有新进展

日前,太原市行政审批服务管理局发布关于太原市圪僚沟村城中村改造安置项目建筑工程规划设计方案的公示。

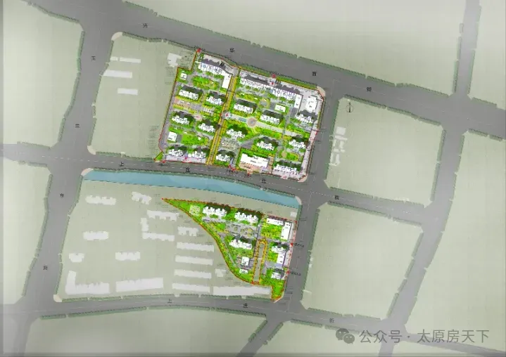
根据公示,太原市圪僚沟村城中村改造安置项目位于万柏林区,地块一位于开城路以南,上庄北街以北,规划路以西。地块二位于上庄北街以南,上庄街以北,规划路以西,太原市柏林宝地建设开发有限公司进行建设,建筑功能为住宅、配套商业,结构形式为钢筋混凝土框架结构、剪力墙结构。

根据技术经济指标表,北地块总建筑面积339409.38平方米,规划户数1986户;南地块总建筑面积117765.69平方米,规划户数726户;配套幼儿园总建筑面积3873.66平方米。

根据此前发布的新建圪僚沟回迁安置房城中村改造工程项目设计招标公告,项目总投资499700万元。

2025-04-22 太原

投诉
#施工进度 #周边配套 #楼市政策 #热门板块 #城市规划
说点什么…