1/3
亲爱的还幸福吗1
关注

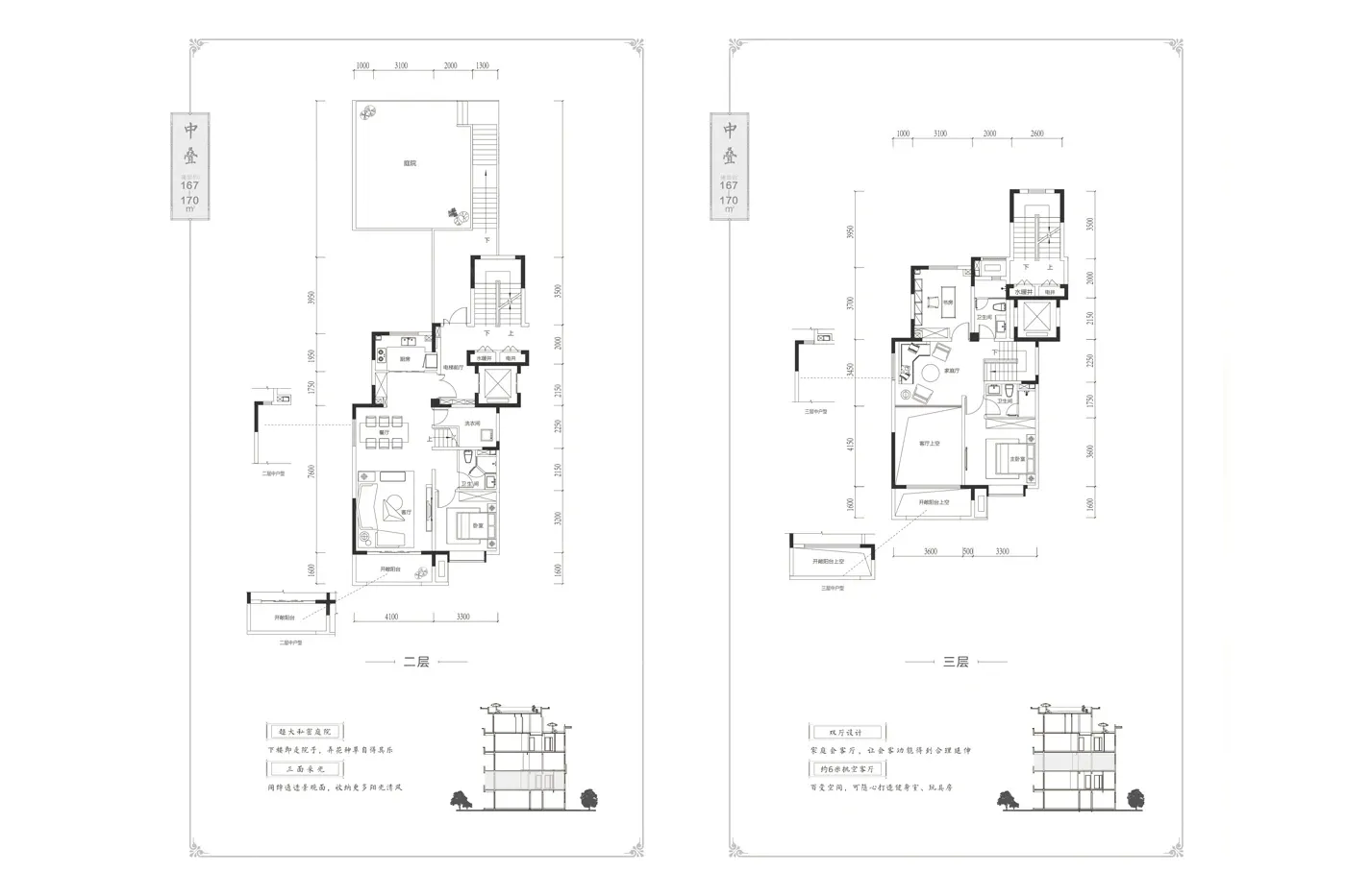
太原别墅卖八九千?看完我闭嘴了

上周被中介拉去看房的时候 我内心:又拿便宜别墅忽悠人?结果到富力山现场直接瞳孔地震!170平三居现房实景 小区里像森林公园 每口呼吸都是负氧离子 重点单价才1.2w?!

以前总觉得别墅区配套不行 结果蒙山景区停车场隔壁就是 步行300米到成成中学 晋源区医院开车10分钟 关键2021年就交付的现房 装修完能直接搬 样板间里遇见两对年轻夫妻都在算首付 突然觉得这届年轻人真会过日子...

该内容疑似使用AI技术合成,请谨慎甄别

编辑于2025-04-12 太原

投诉
#太原别墅 #现房推荐 #低密社区 #品质生活 #买房攻略
说点什么…