1/3
走了就不回来
关注

太原新盘被嘲\"花架子\"?真实体验后我闭嘴了

上周被闺蜜拉去看保利新盘,本杠精内心OS:太原搞五感园林?又是噱头吧?结果现场啪啪打脸!

在中央水景区踩到会唱歌的鹅卵石道,水流声和脚下音符居然能同步,这波操作我给满分!儿童区沙坑藏着感应灯光,晚上会随脚步亮起星河带,熊孩子能玩三小时不带闹的。最绝的是社区香氛系统,不同季节飘不同花香,鼻炎患者亲测没打喷嚏。

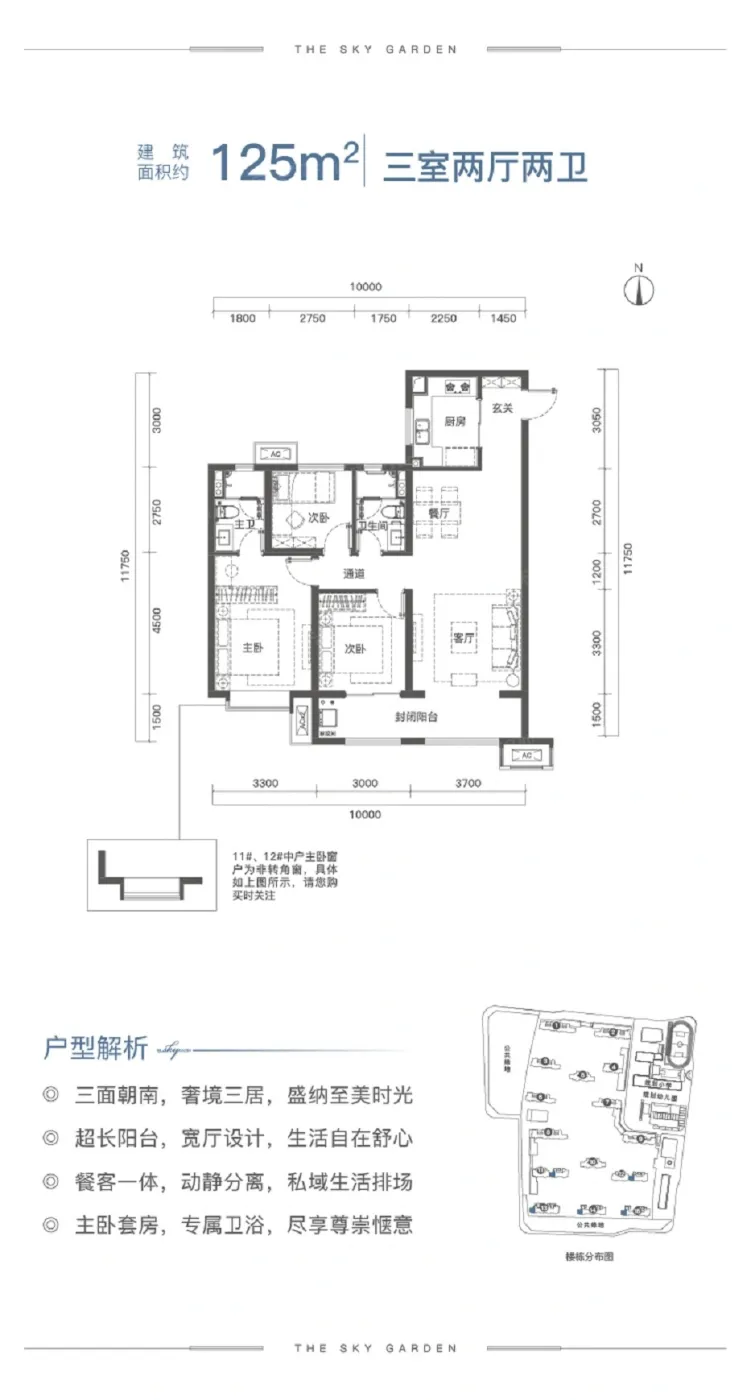
看样板间发现88㎡居然能做三分离卫浴+双卫,125㎡主卧带7㎡步入式衣帽间。本杠精找茬式量尺寸,发现飘窗进深80cm能当榻榻米用。悄悄说,南向阳台全部配电动遮阳帘,这点在太原新盘里确实少见。

现在纠结症发作:选能看到樱花大道的中间楼栋,还是离全龄健身区更近的边户?有没有看过的姐妹给点建议?

该内容疑似使用AI技术合成,请谨慎甄别

编辑于2025-04-07 太原

投诉
#太原买房攻略 #五感园林设计 #新生代社区 #全龄活动空间 #户型解析
说点什么…