1/5
户型拓扑学
关注

罗湖东湖新盘测评!京基璟誉府三轨交汇+双商场,容积率却成硬伤?

在罗湖东湖住进地铁口的山景房,真能兼顾便利与舒适?设计师林小姐的故事或许能给你答案。

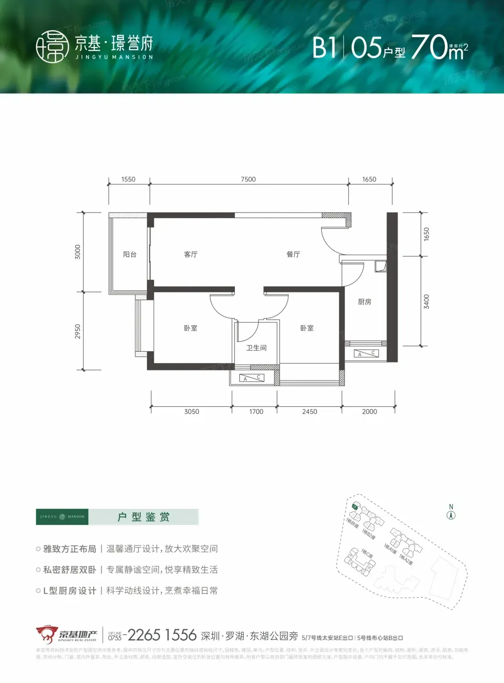
这个踩着方头鞋的90后设计师,去年被5/7号线双地铁吸引来看房,却在样板间发现了隐藏彩蛋——次卧飘窗经过45°斜切改造后,竟能塞下咖啡机和手冲壶架。但当她站在36层阳台俯瞰时,密密麻麻的楼间距却让呼吸一滞:11.37的容积率意味着每扇窗户后都有双眼睛,原本想象中悠闲的清晨瑜伽,可能需要先拉上遮光帘。

项目确实手握双地铁王牌:布心站600米接驳5号线,太安站700米串起7号线。林小姐用手机实测,从地库出发12分钟直达万象食家商圈。楼下2万㎡商业街规划着生鲜超市,但施工围挡后的东湖路早晚高峰,仍会传来此起彼伏的喇叭声。不过真正让她纠结的,是18班幼儿园与布心中学的直线距离——带着孩子穿越丹平快速辅路的日常,成为这个预备二胎家庭的心病。

其实每个都市人的居住理想都像水晶吊灯,既要璀璨的交通配套投射光芒,也需要低密度的空间承载生活质感。当你站在太安站E出口仰望这个玻璃幕墙群时,或许也会和林小姐一样陷入沉思:我们到底需要怎样的生活容器?

该内容疑似使用AI技术合成,请谨慎甄别

编辑于2天前 深圳

投诉
#京基璟誉府 #罗湖新房测评 #地铁房选择指南 #容积率解析 #东湖居住体验 #深圳学区房
说点什么…