王小凤
关注

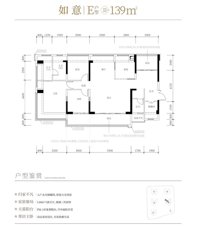
中建鹏宸云筑139平米房源告急!

该户型为“如意E户型”,建筑面积约139平方米,整体布局方正,功能分区明确,动静分离设计合理,适合追求舒适居住体验的家庭。

户型结构分析

1. 玄关与储藏间

入户设置玄关及储藏间,既保证了私密性,又提升了收纳功能,彰显大宅风范。

2. 客厅与餐厅

客厅与餐厅采用LDKG一体化设计(客厅、餐厅、厨房、阳台连通),空间开阔通透,便于家庭成员互动及日常活动。客厅连接约8.5米宽的空中庭院式阳台,采光充足,视野开阔,提升居住品质。

3. 卧室布局

- 主卧:位于户型南侧,配备独立卫生间(含浴缸与淋浴区),并设有高定套房设计,保障主人私密性与舒适度。

- 次卧:位于北侧,靠近公卫,方便家庭成员使用。

- 第三卧室:位于东侧,临近主卧,可作为儿童房或书房使用。

4. 厨房与生活阳台

厨房位于户型东北角,靠近餐厅,动线流畅;生活阳台紧邻厨房,便于晾晒及家务操作。

5. 卫生间配置

设有主卫与公卫两处卫生间,主卫为套房设计,公卫位于公共区域,满足多人同时使用需求。

6. 设备平台与装饰构件

户型中设有设备平台及装饰构件,用于安置空调外机等设备,同时兼顾建筑立面美观。

特色亮点

- 天幕阳台:约8.5米宽的空中庭院式阳台,提供宽敞的观景与休闲空间。

- 尊居主卧:高定套房设计,配备独立卫浴与充足收纳空间。

- 家族聚场:LDKG一体化设计促进家庭成员互动,适合三代同堂居住。

结构说明

- 17层以下为承重墙结构,17层及以上为非承重墙结构。

- 阳台部分标注“不得加、改、扩建及改变使用功能”,需遵守相关规定。

该户型在空间利用、功能分区及居住舒适度方面表现优异,适合注重生活品质的家庭选择。

编辑于01-16 深圳

投诉
#新房探盘 #户型解析 #新房探盘
说点什么…