1/6
户型拓扑学
关注

前海山樾湾|月供1.2w住进地铁口小户型,是真香还是智商税?

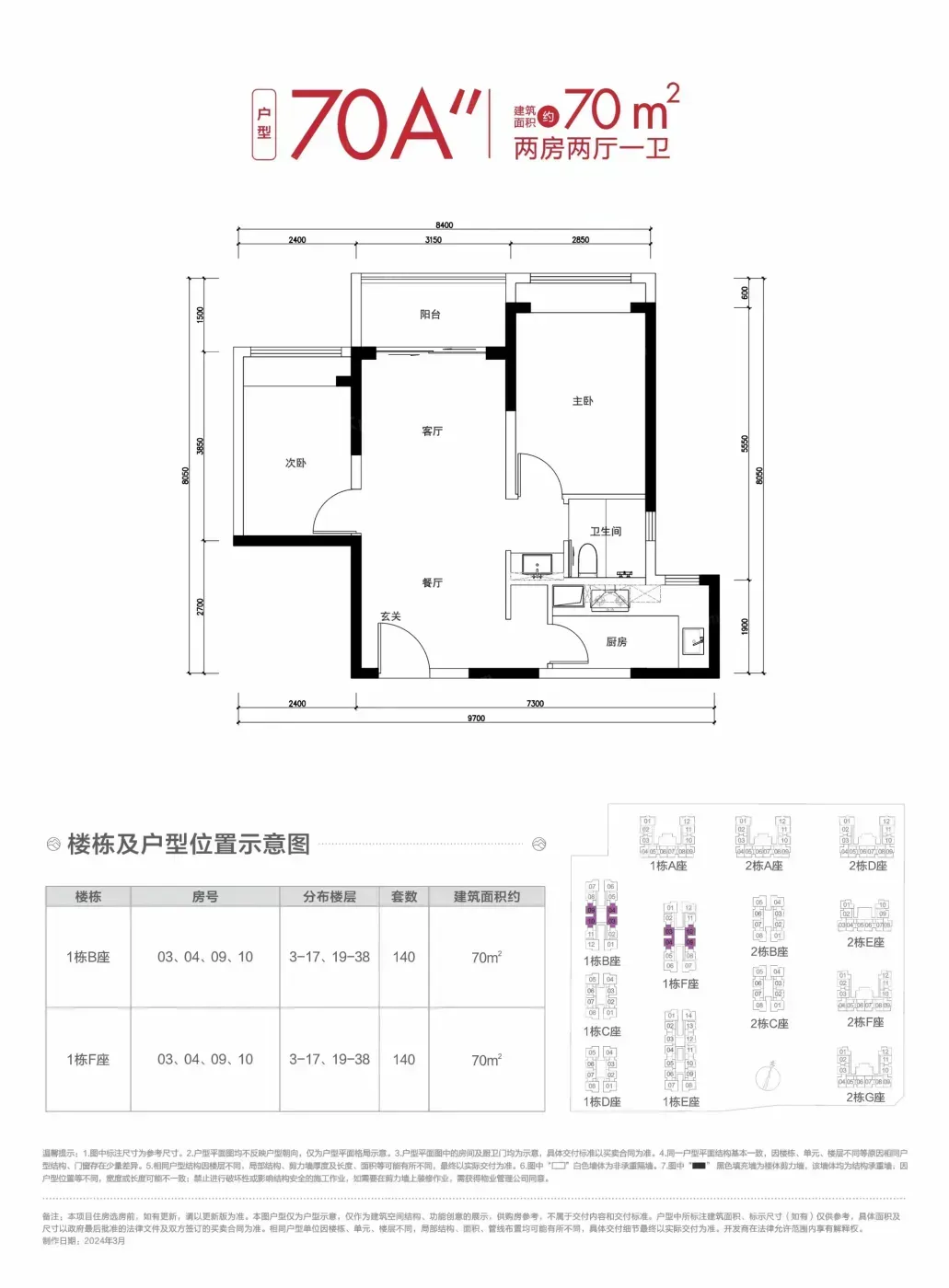
前海核心区新盘2房只要255万?阳台改飘窗咖啡角到底有多爽!作为前海少有的70㎡起步小户型,山樾湾厨房配的方太三件套和凉霸确实暖心,精装交付还能省下装修款。但实测发现这三个真相你要知道:

1️⃣ 地铁通勤虽香但需等待——门口在建的15号线预计2026年通车,目前出行得靠小区班车接驳赤湾站。不过未来在通港路站能换乘5号线,企鹅岛上班的互联网人倒是能睡个懒觉。

2️⃣ 生活配套像开盲盒——楼下便利店要走到1公里外的社区底商,周末想看电影得打车去8公里外的来福士。不过旁边小南山公园倒是遛狗族福音,晨跑时能看见游轮从妈湾港出海。

3️⃣ 户型设计暗藏小心机——74㎡三房居然做了双卫设计,主卧飘窗改书桌后实测能放下1.8米床。但次卧进深只有2.4米,摆放儿童床后过道就剩半米,家有熊孩子的慎选。

住在南山的朋友说,这里的清晨是咖啡机研磨声混合着港口汽笛声,但周末想逛mall还是得开车去万象前海。那些逃离城中村来买首套房的95后,真的愿意用3年通勤不便换未来潜力吗?

该内容疑似使用AI技术合成,请谨慎甄别

编辑于01-12 深圳

投诉
#前海置业 #南山新房 #山樾湾测评 #通勤地铁房 #装修交付 #小户型住宅
说点什么…