1/8
王传海
关注

德望府户型图出炉

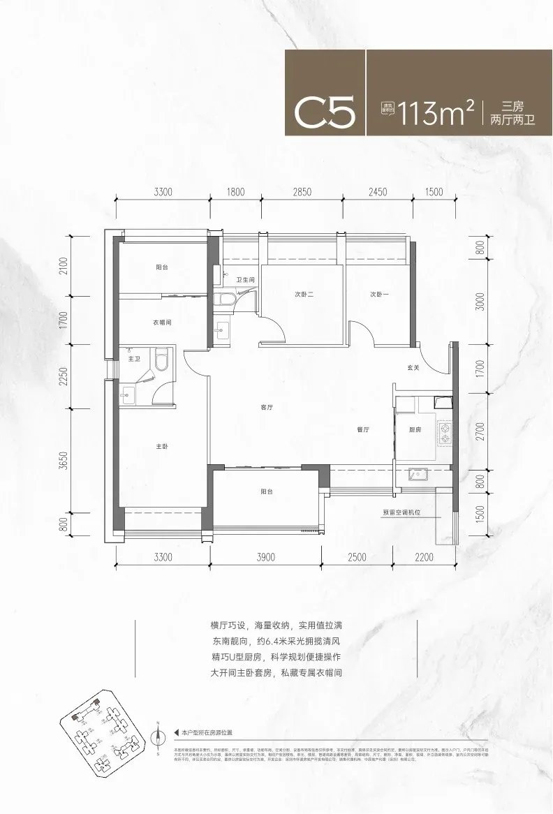
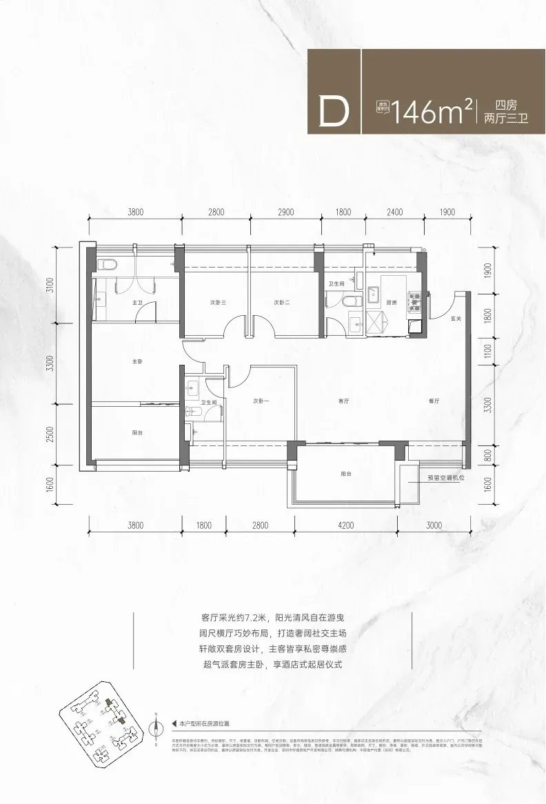
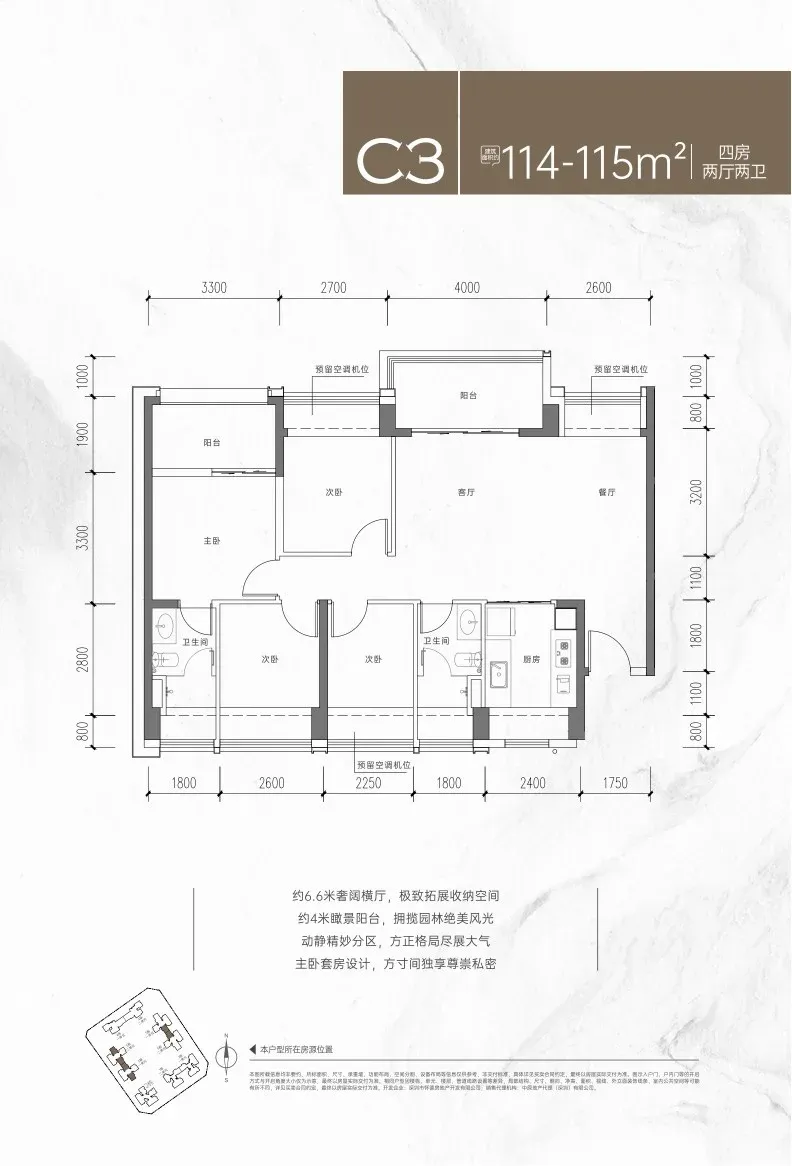
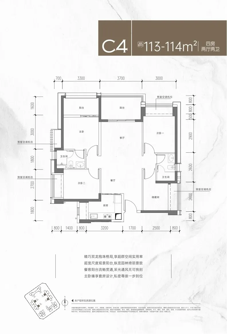
怀德城二期德望,官方户型图全部出炉,本次三房户型为99-100平,四房面积有113-115-146-148-199平。样板间9.26日正式开放,有任何问题欢迎前来德懿府营销中心实地参观

编辑于2025-09-22 深圳

投诉
#户型解析
说点什么…