1/5
一半冰
关注

深圳打工人看过来!月供1.2万拿下前海两居室值吗?

前海三居室月供不到1.3万?这个价格是真香还是套路?今天带着「飘窗咖啡角改造术」的独门秘籍,实测这个让年轻人疯抢的安居房!

❶【选房暗藏的玄机】选房通知书要卡着中午12点在线抢,像不像抢演唱会门票?不过要注意A、B队列分时段选房,三房下午场得定好闹钟。划重点:委托选房要公证,比拍婚纱照还麻烦的流程,建议亲自上阵!

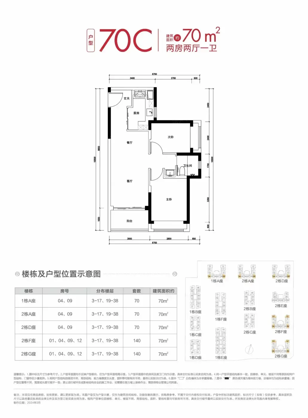
❷【70㎡户型改造术】实测主卧飘窗能改出1.5米宽咖啡角,放得下意式咖啡机还能收纳豆子。但厨房开间仅2.1米,双开门冰箱可能要牺牲过道空间,建议选日式三开门。

❸【配套的AB面】教育配套确实满分,但前海在建中的新商场至少等3年。阳台看出去是自贸区吊塔群,夜间施工灯光可能影响睡眠,养生党建议备好遮光帘。

每个在城市打拼的年轻人,都值得被生活温柔以待。当你在前海找到属于自己的那扇窗时,或许会发现,家与理想的平衡点,其实就在这里。

该内容疑似使用AI技术合成,请谨慎甄别

编辑于2025-06-29 深圳

投诉
#深圳安居房测评 #前海买房攻略 #户型改造灵感 #刚需选房指南 #城市生活美学
说点什么…